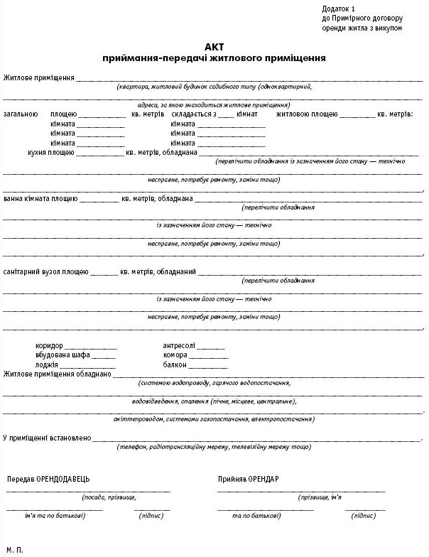
Утвержден примерный договор аренды жилья с выкупом
Приказ Минрегионстроя Украины от 24.06.2009 г. № 252
Об утверждении Примерного договора аренды жилья с выкупом
Во исполнение
п. 5 Порядка аренды жилья с выкупом, утвержденного постановлением Кабинета Министров Украины от 25 марта 2009 г. № 274,
ПРИКАЗЫВАЮ
:1. Утвердить прилагаемый Примерный договор аренды жилья с выкупом.
2. Управлению разработки и реализации государственных жилищных программ (Непомнящий А.) обеспечить размещение настоящего приказа на официальном сайте Минрегионстроя.
3. Контроль за выполнением настоящего приказа возложить на заместителя министра Исаен-ко Д. В.
Министр В. Куйбида





Начальник Управління розробки та реалізації державних житлових програм О.М. Непомнящий



Комментарий
см. на с. 42-43 этого номера газеты.
