Затверджено примірний договір оренди житла з викупом
Наказ Мінрегіонбуду України від 24.06.2009 р. № 252
Про затвердження Примірного договору оренди житла з викупом
На виконання
п. 5 Порядку оренди житла з викупом, затвердженого постановою Кабінету Міністрів України від 25 березня 2009 р. № 274 ,
НАКАЗУЮ:
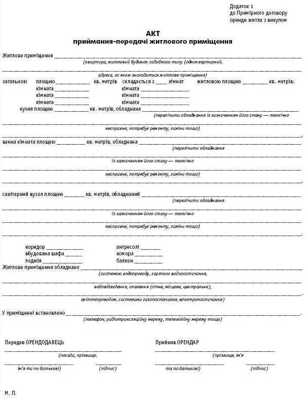
1. Затвердити Примірний договір оренди житла з викупом, що додається.
2. Управлінню розробки та реалізації державних житлових програм (Непомнящий О.М.) забезпечити розміщення цього наказу на офіційному сайті Мінрегіонбуду.
3. Контроль за виконанням цього наказу покласти на заступника Міністра Ісаєнка Д.В.
Міністр В. Куйбіда





Начальник Управління розробки та реалізації державних житлових програм О.М. Непомнящий



Коментар
див. на с. 42–49 цього номера газети.
