Примерная форма Договора о паевом участии заказчиков строительства в развитии инженерно-транспортной и социальной инфраструктуры населенного пункта
Письмо Министерства регионального развития, строительства и жилищно-коммунального хозяйства Украины от 03.07.2012 г. № 7/15-10782
На выполнение части первой статьи 40 Закона Украины «О регулировании градостроительной деятельности» (далее – Закон), вступившего в силу 12 марта 2011 года, органы местного самоуправления должны были разработать и утвердить Порядки привлечения, расчета размера и использования средств паевого участия в развитии инженерно-транспортной и социальной инфраструктуры населенных пунктов (далее – Порядки).
Анализ информации, предоставленной Советом министров АР Крым, областными государственными администрациями, указывает на крайне неудовлетворительное состояние выполнения органами местного самоуправления всех уровней требований, установленных статьей 40 Закона.
Так, из 178 городов областного значения Порядки утверждены в 107, что составляет 60 % от их общего количества. Из 11029 городов районного значения, сел и поселков Порядки утверждены лишь в 1285, что составляет 12 % от общего количества указанных населенных пунктов.
Не единичны случаи нарушения органами местного самоуправления требований, установленных Законом, а именно:
— привлечение органами местного самоуправления заказчиков строительства к паевому участию при отсутствии утвержденных Порядков ;
— превышение предельного размера паевого участия;
— отсутствие четких механизмов принятия в коммунальную собственность и передачи на баланс специализированных эксплуатирующих организаций инженерных сетей и объектов инженерной инфраструктуры и возмещения заказчикам строительства их стоимости;
— установление органами местного самоуправления дополнительных сборов, не предусмотренных законодательством;
— отказ заказчикам строительства в приведении в соответствие с Законом договоров о паевом участии, заключенных до вступления Закона в силу и т. п.
С целью неуклонного выполнения требований, установленных Законом Украины «О регулировании градостроительной деятельности», просим поспособствовать проработке указанного вопроса в исполнительных органах местного самоуправления всех уровней, которые в соответствии с собственными полномочиями должны утвердить Порядки расчета и привлечения заказчиков строительства к паевому участию в развитии инженерно-транспортной и социальной инфраструктуры населенных пунктов, и проинформировать Министерство.
Одновременно посылаем примерную форму Договора о паевом участии заказчиков строительства в развитии инженерно-транспортной и социальной инфраструктуры населенного пункта.
Приложение : Примерная форма Договора о паевом участии заказчиков строительства в развитии инженерно-транспортной и социальной инфраструктуры населенного пункта на 7 стр.
Министр А. Близнюк





КОММЕНТАРИЙ
Комментируемое Письмо размещено на официальном сайте Минрегиона1 и адресовано Совету Министров АР Крым и областным государственным администрациям. В то же время считаем, что не менее интересно будет ознакомиться с ним и заказчикам строительства, поскольку оно касается такой неотъемлемой составляющей строительного процесса, как долевое участие в развитии инфраструктуры населенного пункта (далее — долевое участие). К сожалению, как показывает сегодняшний день, у застройщиков возникает множество вопросов по долевому участию, один из которых вопрос — как именно должно рассчитываться долевое участие и каковы составляющие такого расчета?
1 http://www.minregion.gov.ua (найти текст этого письма можно, если по очереди зайти на такие вкладки: Головна сторінка/Будівництво та архітектура/Ціноутворення, експертиза та контроль вартості у будівництві/Договірні відносини у капітальному будівництві).
Основная проблема, на наш взгляд, — это отсутствие единого порядка привлечения, расчета размера и использования средств долевого участия в развитии инженерно-транспортной и социальной инфраструктуры населенных пунктов (далее — Порядок).
Так, ч. 1 ст. 40 Закона Украины «О регулировании градостроительной деятельности» от 17.02.2011 г. № 3038-VI (далее — Закон № 3038) предусмотрено, что обязательство по разработке Порядка возложено на органы местного самоуправления. То есть каждый орган местного самоуправления должен разработать Порядок, который будет действовать только на своей территории, подотчетной этому местному совету.
Основные требования к содержанию такого Порядка содержатся в той же ст. 40 Закона № 3038. И больше нигде об этом дополнительно не указано.
Кроме того, органы местного самоуправления должны также разработать и утвердить форму договора о привлечении заказчика к долевому участию в развитии инфраструктуры населенного пункта. При этом формула расчета долевого участия также должна составляться соответствующим органом местного самоуправления. Мы эти вопросы уже неоднократно освещали на страницах нашего издания (см. «Строительная бухгалтерия», 2012, № 6, с. 31-35; № 11, с. 44-45; № 13, с. 45-46).
К тому же четкой формулы расчета долевого участия не существует. Относительно ее составляющих можно прийти к выводу, ознакомившись с ч. 5 ст. 40 Закона № 3038. В частности, согласно этой статье величина долевого участия должна определяться в договоре, заключенном с органом местного самоуправления, с учетом общей сметной стоимости строительства объекта, определенной согласно строительным нормам, государственным стандартам и правилам. При этом не учитываются:
— расходы на приобретение и выделение земельного участка;
— освобождение строительной площадки от зданий, сооружений и инженерных сетей;
— обустройство внутренних и внеплощадочных инженерных сетей и сооружений и транспортных коммуникаций.
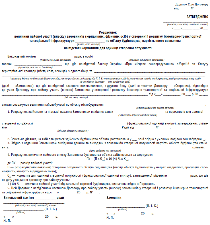
Также предусматривается, что, если общая сметная стоимость строительства объекта не определена согласно строительным нормам, государственным стандартам и правилам, она определяется на основе установленных органом местного самоуправления нормативов для единицы созданной мощности.
Конечно, нельзя забывать и о такой составляющей формулы, как предельный размер долевого участия, установленный ч. 6 ст. 40 Закона № 3038.
Учитывая отсутствие четкой формулы расчета долевого участия и предоставление права органам местного самоуправления самостоятельно определять составляющие такой формулы (конечно в пределах действующего законодательства), начали возникать ситуации, когда на разных территориях, подотчетных тому или иному местному совету, утверждены разные формулы расчета.
В комментируемом Письме проблема долевого участия рассмотрена более широко. Минрегион, который его подготовил, подчеркнул свои попытки оказать помощь органам местного самоуправления не только в составлении формул расчета долевого участия, но и в разработке формы договора о привлечении заказчиков строительства к долевому участию.
Проанализировав примерную форму договора о долевом участии, хочется отметить, что «революционных» положений в нем не содержится. Существующие на сегодняшний день формы договоров, принятых органами местного самоуправления, почти отвечают по своему содержанию предложенному Минрегионом примерному договору.
Зато особого внимания заслуживают формулы расчетов долевого участия, приведенные в приложениях к комментируемому Письму. Следует отметить, что формулы расчетов отличаются одна от другой по своим составляющим.
Так, если основанием для расчета долевого участия является известная общая сметная стоимость строительства — Минрегион предлагает для применения одну форму расчета. Если же размер долевого участия определяется на основе установленных органом местного самоуправления нормативов для единицы созданной мощности — это другая формула расчета.
Отличие их состоит в том, что в первой форме расчета применяются в формуле такие составляющие, как расходы на приобретение и выделение земельного участка; освобождение строительной площадки от зданий, сооружений и инженерных сетей; обустройство внутренних и внеплощадочных инженерных сетей и сооружений и транспортных коммуникаций. Они вычитаются из общей сметной стоимости строительства, как это и предусмотрено ст. 40 Закона № 3038. В другой формуле такие значения отсутствуют.
Кроме того, нетрудно заметить, что в форме расчета, осуществляемого на основании общей сметной стоимости, отсутствует такая составляющая, как коэффициент зональности, который есть в другой форме расчета. Следует отметить, что на сегодняшний день коэффициент зональности широко применяется органами местного самоуправления при определении размера долевого участия, независимо от того, что служит основанием для его определения: общая сметная стоимость или норматив для единицы созданной мощности.
И в завершение хотелось бы отметить… Предложенные Минрегионом формы документов, конечно, являются позитивом. Они могут служить макетом для соответствующих форм, которые самостоятельно пытаются разрабатывать органы местного самоуправления. В то же время существование хотя бы примерных форм документов позволит сориентировать заказчиков строительства в таком вопросе: как же именно рассчитывается долевое участие?
Яна Брусенцова
