Кабінет Міністрів України
Деякі питання розслідування та обліку нещасних випадків, професійних захворювань і аварій на виробництві
Постанова від 30 листопада 2011 р. № 1232
Кабінет Міністрів України постановляє:
1. Затвердити Порядок проведення розслідування та ведення обліку нещасних випадків, професійних захворювань і аварій на виробництві, що додається.
2. Надати право роз'яснювати вимоги Порядку, затвердженого цією постановою:
Державній службі гірничого нагляду та промислової безпеки — щодо розслідування та обліку нещасних випадків і аварій на виробництві;
Міністерству охорони здоров'я — щодо розслідування та обліку гострих, хронічних професійних захворювань і отруєнь.
3. Визнати такими, що втратили чинність, постанови Кабінету Міністрів України згідно з переліком, що додається.
4. Ця постанова набирає чинності з 1 січня 2012 року.
Прем'єр-міністр України М. АЗАРОВ
Затверджено постановою Кабінету Міністрів України від 30 листопада 2011 р. № 1232
Порядок проведення розслідування та ведення обліку нещасних випадків, професійних захворювань і аварій на виробництві
Загальні питання
1. Цей Порядок визначає процедуру проведення розслідування та ведення обліку нещасних випадків, професійних захворювань і аварій, що сталися з працівниками на підприємствах, в установах та організаціях незалежно від форми власності або в їх філіях, представництвах, інших відокремлених підрозділах (далі — підприємства).
2. Дія цього Порядку поширюється на:
1) власників підприємств або уповноважені ними органи (далі — роботодавці);
2) працівників, у тому числі іноземців та осіб без громадянства, які відповідно до законодавства уклали з роботодавцем трудовий договір (контракт) або фактично допущені до роботи роботодавцем;
3) фізичних осіб — підприємців;
4) членів фермерського господарства, членів особистого селянського господарства, осіб, що працюють за договором, укладеним відповідно до законодавства (далі — особи, що забезпечують себе роботою самостійно).
Дія цього Порядку також поширюється на працівників дипломатичної служби під час роботи у закордонній дипломатичній установі України та осіб, які відповідно до законодавства про працю працюють за трудовим договором (контрактом) у військових частинах (підрозділах) або на підприємствах, в установах та організаціях, що належать до сфери управління Міноборони, МВС, Держспецтрансслужби, СБУ, Служби зовнішньої розвідки, Адміністрації Держприкордонслужби, ДПтС, МНС, Держспецзв'язку, Держтехногенбезпеки.
3. Дія цього Порядку не поширюється на:
1) осіб рядового і начальницького складу органів та підрозділів Держспецзв'язку;
2) військовослужбовців Служби зовнішньої розвідки, Збройних Сил, Управління державної охорони, СБУ, Держспецтрансслужби;
3) осіб рядового і начальницького складу органів внутрішніх справ, військовослужбовців внутрішніх військ, курсантів (слухачів) навчальних закладів МВС;
4) осіб, що утримуються в установах виконання покарань та слідчих ізоляторах;
5) осіб рядового і начальницького складу Державної кримінально-виконавчої служби;
6) осіб рядового і начальницького складу Держтехногенбезпеки;
7) осіб рядового і начальницького складу органів та підрозділів цивільного захисту МНС;
8) військовослужбовців Адміністрації Держприкордонслужби та її регіональних управлінь, Морської охорони, органів охорони державного кордону, розвідувального органу Адміністрації Держприкордонслужби, навчальних закладів, науково-дослідних установ та органів забезпечення Держприкордонслужби у період проходження ними військової служби.
4. Порядок проведення розслідування та ведення обліку нещасних випадків, що сталися з вихованцями, учнями, студентами, курсантами, слухачами, стажистами, клінічними ординаторами, аспірантами, докторантами під час навчально-виховного процесу, визначається МОНмолодьспортом за погодженням з відповідним профспілковим органом.
5. Розслідування та облік нещасних випадків, що сталися з працівниками під час прямування на роботу чи з роботи пішки, на громадському, власному або іншому транспортному засобі, що не належить підприємству і не використовується в інтересах підприємства, проводяться згідно з порядком розслідування та обліку нещасних випадків невиробничого характеру.
6. Розслідування нещасних випадків та професійних захворювань, що сталися з працівниками, які перебували у відрядженні за кордоном, проводиться згідно з цим Порядком, якщо інше не передбачено міжнародними договорами України.
Розслідування та облік нещасних випадків
7. Розслідування проводиться у разі виникнення нещасного випадку, а саме обмеженої в часі події або раптового впливу на працівника небезпечного виробничого фактора чи середовища, що сталися у процесі виконання ним трудових обов'язків, внаслідок яких зафіксовано шкоду здоров'ю, зокрема від одержання поранення, травми, у тому числі внаслідок тілесних ушкоджень, гострого професійного захворювання і гострого професійного та інших отруєнь, одержання сонячного або теплового удару, опіку, обмороження, а також у разі утоплення, ураження електричним струмом, блискавкою та іонізуючим випромінюванням, одержання інших ушкоджень внаслідок аварії, пожежі, стихійного лиха (землетрусу, зсуву, повені, урагану тощо), контакту з представниками тваринного і рослинного світу, які призвели до втрати працівником працездатності на один робочий день чи більше або до необхідності переведення його на іншу (легшу) роботу не менш як на один робочий день, зникнення, а також настання смерті працівника під час виконання ним трудових (посадових) обов'язків.
До гострого професійного отруєння належить захворювання, що виникло після однократного впливу на працівника шкідливої речовини (речовин).
До гострого професійного захворювання належить захворювання, що виникло після однократного (протягом не більш як однієї робочої зміни) впливу шкідливих факторів фізичного, біологічного та хімічного характеру.
8. Про кожний нещасний випадок потерпілий або працівник, який його виявив, чи інша особа — свідок нещасного випадку повинні негайно повідомити керівника робіт, який безпосереднього здійснює контроль за станом охорони праці на робочому місці (далі — безпосередній керівник робіт), чи іншу уповноважену особу підприємства і вжити заходів до надання необхідної допомоги потерпілому.
У разі настання нещасного випадку безпосередній керівник робіт зобов'язаний:
терміново організувати надання першої невідкладної допомоги потерпілому, забезпечити у разі потреби його доставку до лікувально-профілактичного закладу;
негайно повідомити роботодавця про те, що сталося;
зберегти до прибуття комісії з розслідування (спеціального розслідування) нещасного випадку обстановку на робочому місці та машини, механізми, обладнання, устаткування (далі — устаткування) у такому стані, в якому вони були на момент настання нещасного випадку (якщо це не загрожує життю чи здоров'ю інших працівників і не призведе до більш тяжких наслідків та порушення виробничих процесів), а також вжити заходів до недопущення подібних нещасних випадків.
9. Лікувально-профілактичний заклад повинен передати протягом доби з використанням засобів зв'язку та на паперовому носії екстрене повідомлення про звернення потерпілого з посиланням на нещасний випадок на виробництві за формою згідно з додатком 1:
1) підприємству, де працює потерпілий;
2) робочому органові виконавчої дирекції Фонду соціального страхування від нещасних випадків на виробництві та професійних захворювань (далі — Фонд) за місцезнаходженням підприємства, де працює потерпілий, або за місцем настання нещасного випадку з фізичною особою — підприємцем або особою, що забезпечує себе роботою самостійно;
3) територіальному органові Держгірпромнагляду за місцем настання нещасного випадку;
4) закладові державної санітарно-епідеміологічної служби, який здійснює державний санітарно-епідеміологічний нагляд за підприємством, де працює потерпілий, або такому закладові за місцем настання нещасного випадку з фізичною особою — підприємцем або особою, що забезпечує себе роботою самостійно, у разі виявлення гострого професійного захворювання (отруєння).
Лікувально-профілактичний заклад обов'язково проводить у порядку, встановленому МОЗ, необхідні дослідження і складає протокол про наявність в організмі потерпілого алкоголю (наркотичних засобів чи отруйних речовин) та визначає ступінь його сп'яніння. Відповідний висновок чи витяг з протоколу, а також висновок про ступінь тяжкості травми (із зазначенням коду діагнозу згідно з Міжнародною статистичною класифікацією хвороб та споріднених проблем охорони здоров'я (МКХ-10) подаються на запит роботодавця, Фонду до утворення комісії з проведення розслідування нещасного випадку (далі — комісія) або голови комісії після її утворення протягом однієї доби з моменту одержання запиту.
10. Роботодавець, одержавши повідомлення про нещасний випадок (крім випадків, передбачених пунктом 37 цього Порядку), зобов'язаний:
1) протягом однієї години передати з використанням засобів зв'язку та протягом доби на паперовому носії повідомлення про нещасний випадок згідно з додатком 2:
Фондові за місцезнаходженням підприємства, на якому стався нещасний випадок;
керівникові первинної організації профспілки незалежно від членства потерпілого в профспілці (у разі наявності на підприємстві кількох профспілок — керівникові профспілки, членом якої є потерпілий, а у разі відсутності профспілки — уповноваженій найманими працівниками особі з питань охорони праці);
керівникові підприємства, де працює потерпілий, якщо потерпілий є працівником іншого підприємства;
органові державного пожежного нагляду за місцезнаходженням підприємства у разі настання нещасного випадку внаслідок пожежі;
закладові державної санітарно-епідеміологічної служби, який здійснює санітарно-епідеміологічний нагляд за підприємством (у разі виявлення гострого професійного захворювання (отруєння);
2) протягом доби утворити комісію у складі не менш як три особи та організувати проведення розслідування.
Роботодавець зобов'язаний створити належні умови для роботи комісії (забезпечити приміщенням, засобами зв'язку, оргтехнікою, автотранспортом, канцелярським приладдям), компенсувати витрати, пов'язані з її діяльністю, а також залучених до роботи експертів, інших спеціалістів та сприяти роботі комісії з метою своєчасного і об'єктивного проведення розслідування нещасного випадку.
11. До складу комісії входять керівник (спеціаліст) служби охорони праці або посадова особа, на яку роботодавцем покладено виконання функцій з охорони праці (голова комісії), представник Фонду за місцезнаходженням підприємства, представник первинної профспілки (у разі наявності на підприємстві кількох профспілок — представник профспілки, членом якої є потерпілий, а у разі відсутності профспілки — уповноважена найманими працівниками особа з питань охорони праці), а також представник підприємства, інші особи.
Якщо потерпілий є працівником іншого підприємства, до складу комісії входять також представники такого підприємства та первинної організації профспілки, а у разі відсутності на підприємстві профспілки — уповноважена найманими працівниками особа з питань охорони праці.
До складу комісії не може входити безпосередній керівник робіт.
У разі виявлення гострого професійного захворювання (отруєння) до складу комісії входить також представник закладу державної санітарно-епідеміологічної служби, який здійснює санітарно-епідеміологічний нагляд за підприємством. У разі відсутності на підприємстві, у фізичних осіб — підприємців чи в осіб, що забезпечують себе роботою самостійно, необхідної кількості осіб для утворення комісії до складу комісії входять представники роботодавця (роботодавець) та райдержадміністрації чи виконавчого органу місцевого самоврядування.
У разі настання нещасного випадку на судні морського або річкового чи рибопромислового флоту під час плавання або перебування в іноземному порту комісія утворюється капітаном такого судна, про що повідомляється власник судна, який відповідно до вимог пункту 10 цього Порядку повідомляє Фонд про нещасний випадок за місцем реєстрації (приписки) судна.
У разі настання нещасного випадку в закордонній дипломатичній установі України комісія утворюється керівником такої установи або особою, яка його заміщає, про що повідомляється МЗС, яке відповідно до вимог пункту 10 цього Порядку повідомляє про нещасний випадок Фонд.
Потерпілий або уповноважена ним особа, яка представляє його інтереси, не входить до складу комісії, але має право брати участь у її засіданнях, вносити пропозиції, подавати документи щодо нещасного випадку, давати відповідні пояснення, в тому числі викладати в усній і письмовій формі особисту думку щодо обставин і причин настання нещасного випадку та одержувати від голови комісії інформацію про хід проведення розслідування.
Голова комісії зобов'язаний письмово поінформувати потерпілого або уповноважену ним особу, яка представляє його інтереси, про його або її права і з початку роботи комісії запросити до співпраці.
Члени комісії мають право одержувати усні чи письмові пояснення щодо нещасного випадку та проводити опитування роботодавця, посадових осіб, інших працівників підприємства, у тому числі потерпілого, та опитати осіб — свідків нещасного випадку та причетних до нього осіб, робити необхідні запити, пов'язані з проведенням розслідування.
12. У разі коли нещасний випадок стався з фізичною особою — підприємцем чи особою, що забезпечує себе роботою самостійно та добровільно застрахована у Пенсійному фонді України за умови сплати нею внеску на загальнообов'язкове державне соціальне страхування від нещасного випадку на виробництві та професійного захворювання (крім випадків, передбачених пунктом 37 цього Порядку), розслідування організовує Фонд за місцем настання нещасного випадку, який утворює комісію у складі не менш як три особи.
До складу комісії входять представник Фонду за місцем настання нещасного випадку (голова комісії) та представники райдержадміністрації (у разі настання нещасного випадку в місті районного значення чи районі мм. Києва і Севастополя) чи облдержадміністрації (у разі настання нещасного випадку в місті обласного значення) (далі — місцева держадміністрація) за місцем настання нещасного випадку, первинної організації профспілки, членом якої є потерпілий, або територіального профоб'єднання за місцем настання нещасного випадку, якщо потерпілий не є членом профспілки.
У разі виявлення гострого професійного захворювання (отруєння) до складу комісії також входить представник закладу державної санітарно-епідеміологічної служби за місцем настання нещасного випадку.
13. Проведення розслідування нещасного випадку, який стався з фізичною особою — підприємцем чи особою, що забезпечує себе роботою самостійно і не застрахована у Пенсійному фонді України як платник єдиного внеску на загальнообов'язкове державне соціальне страхування, організовує територіальний орган Держгірпромнагляду за місцем настання нещасного випадку, який утворює комісію у складі не менш як три особи.
До складу комісії входять представник територіального органу Держгірпромнагляду за місцем настання нещасного випадку (голова комісії) та представники місцевої держадміністрації за місцем настання нещасного випадку, первинної організації профспілки, членом якої є потерпілий, або територіального профоб'єднання за місцем настання нещасного випадку, якщо потерпілий не є членом профспілки.
У разі виявлення гострого професійного захворювання (отруєння) до складу комісії також входить представник закладу державної санітарно-епідеміологічної служби, який здійснює санітарно-епідеміологічний нагляд за підприємством.
14. Комісія зобов'язана протягом трьох робочих днів з моменту її утворення:
обстежити місце настання нещасного випадку, одержати письмові пояснення потерпілого, якщо це можливо, опитати осіб — свідків нещасного випадку та причетних до нього осіб;
визначити відповідність умов праці та її безпеки вимогам законодавства про охорону праці;
з'ясувати обставини і причини настання нещасного випадку;
вивчити первинну медичну документацію (журнал реєстрації травматологічного пункту лікувально-профілактичного закладу, звернення потерпілого до медичного пункту або медико-санітарної частини підприємства, амбулаторну картку та історію хвороби потерпілого, документацію відділу кадрів, відділу (служби) охорони праці тощо);
визначити, пов'язаний чи не пов'язаний нещасний випадок з виробництвом;
установити осіб, які допустили порушення вимог законодавства про охорону праці, а також розробити план заходів щодо запобігання подібним нещасним випадкам;
скласти у п'яти примірниках акт проведення розслідування нещасного випадку за формою Н-5 (далі — акт за формою Н-5) згідно з додатком 3 та акт про нещасний випадок, пов'язаний з виробництвом, за формою Н-1 (далі — акт за формою Н-1) згідно з додатком 4 (у разі, коли нещасний випадок визнано таким, що пов'язаний з виробництвом) і передати їх роботодавцеві для затвердження;
скласти у разі виявлення гострого професійного захворювання (отруєння), пов'язаного з виробництвом, крім актів за формою Н-5 і Н-1, у шістьох примірниках картку обліку професійного захворювання (отруєння) за формою П-5 (далі — картка за формою П-5) згідно з додатком 5.
Акти за формою Н-5 і Н-1 підписуються головою та всіма членами комісії. У разі незгоди із змістом акта член комісії підписує його з відміткою про наявність окремої думки, яку викладає письмово і додає до акта за формою Н-5 як його невід'ємну частину.
У випадках, зазначених у пункті 31 цього Порядку, або у разі виникнення потреби у проведенні лабораторних досліджень, експертизи, випробувань для встановлення обставин і причин настання нещасного випадку строк розслідування може бути продовжений за письмовим погодженням з територіальним органом Держгірпромнагляду за місцезнаходженням підприємства.
У разі отримання письмового погодження роботодавець приймає рішення про продовження строку проведення розслідування.
У разі коли нещасний випадок визнаний комісією таким, що не пов'язаний з виробництвом, складається акт за формою Н-5.
15. Обставинами, за яких нещасний випадок визнається таким, що пов'язаний з виробництвом, і складається акт за формою Н-1, є:
1) виконання потерпілим трудових (посадових) обов'язків за режимом роботи підприємства, у тому числі у відрядженні;
2) перебування на робочому місці, на території підприємства* або в іншому місці для виконанням потерпілим трудових (посадових) обов'язків чи завдань роботодавця з моменту прибуття потерпілого на підприємство до його відбуття, що фіксується відповідно до правил внутрішнього трудового розпорядку підприємства, в тому числі протягом робочого та надурочного часу;
3) підготовка до роботи та приведення в порядок після закінчення роботи знарядь виробництва, засобів захисту, одягу, а також здійснення заходів щодо особистої гігієни, пересування по території підприємства перед початком роботи і після її закінчення;
4) виконання завдань відповідно до розпорядження роботодавця в неробочий час, під час відпустки, у вихідні, святкові та неробочі дні;
5) проїзд на роботу чи з роботи на транспортному засобі, що належить підприємству, або іншому транспортному засобі, наданому роботодавцем відповідно до укладеного договору;
6) використання власного транспортного засобу в інтересах підприємства з дозволу або за письмовим дорученням роботодавця чи безпосереднього керівника робіт;
7) виконання дій в інтересах підприємства, на якому працює потерпілий, тобто дій, які не належать до його трудових (посадових) обов'язків, зокрема із запобігання виникненню аварій або рятування людей та майна підприємства, будь-які дії за дорученням роботодавця; участь у спортивних змаганнях, інших масових заходах та акціях, які проводяться підприємством самостійно або за рішенням органів управління за наявності відповідного розпорядження роботодавця;
8) ліквідація наслідків аварії, надзвичайної ситуації техногенного або природного характеру на виробничих об'єктах і транспортних засобах, що використовуються підприємством;
9) надання підприємством шефської (благодійної) допомоги іншим підприємствам, установам, організаціям за наявності відповідного рішення роботодавця;
10) перебування потерпілого у транспортному засобі або на його стоянці, на території вахтового селища, у тому числі під час змінного відпочинку, якщо настання нещасного випадку пов'язане з виконанням потерпілим трудових (посадових) обов'язків або з впливом на нього небезпечних чи шкідливих виробничих факторів чи середовища;
11) прямування потерпілого до об'єкта (між об'єктами) обслуговування за затвердженим маршрутом або до будь-якого об'єкта за дорученням роботодавця;
12) прямування потерпілого до місця чи з місця відрядження згідно з установленим завданням, у тому числі на транспортному засобі будь-якого виду та форми власності;
13) раптова серцева смерть потерпілого внаслідок гострої серцево-судинної недостатності під час перебування на підземних роботах (видобування корисних копалин, будівництво, реконструкція, технічне переоснащення і капітальний ремонт шахт, рудників, копалень, метрополітенів, підземних каналів, тунелів та інших підземних споруд, проведення геологорозвідувальних робіт під землею) або після підйому потерпілого на поверхню з даною ознакою, що підтверджено медичним висновком;
14) скоєння самогубства працівником плавскладу на суднах морського, річкового та рибопромислового флоту в разі перевищення обумовленого колективним договором строку перебування у рейсі або його смерті під час перебування у рейсі внаслідок впливу психофізіологічних, небезпечних чи шкідливих виробничих факторів;
15) оголошення потерпілого померлим унаслідок його зникнення, пов'язаного з нещасним випадком під час виконання ним трудових (посадових) обов'язків;
16) заподіяння тілесних ушкоджень іншою особою або вбивство потерпілого під час виконання чи у зв'язку з виконанням ним трудових (посадових) обов'язків або дій в інтересах підприємства незалежно від порушення кримінальної справи, крім випадків з'ясування потерпілим та іншою особою особистих стосунків невиробничого характеру, що підтверджено висновком компетентних органів;
17) одержання потерпілим травми або інших ушкоджень внаслідок погіршення стану його здоров'я, яке сталося під впливом небезпечного виробничого фактора чи середовища у процесі виконання ним трудових (посадових) обов'язків, що підтверджено медичним висновком;
18) раптове погіршення стану здоров'я потерпілого або його смерті під час виконання трудових (посадових) обов'язків внаслідок впливу небезпечних чи шкідливих виробничих факторів та/або факторів важкості чи напруженості трудового процесу, що підтверджено медичним висновком**, або якщо потерпілий не пройшов обов'язкового медичного огляду відповідно до законодавства, а робота, що виконувалася, протипоказана потерпілому відповідно до медичного висновку;
19) перебування потерпілого на території підприємства або в іншому місці роботи під час перерви для відпочинку та харчування, яка встановлюється згідно з правилами внутрішнього трудового розпорядку підприємства, технологічної перерви, а також під час перебування на території підприємства у зв'язку з проведенням виробничої наради, одержанням заробітної плати, проходженням обов'язкового медичного огляду тощо або проведенням з дозволу чи за ініціативою роботодавця професійних та кваліфікаційних конкурсів, спортивних змагань та тренувань чи заходів, передбачених колективним договором, якщо настання нещасного випадку пов'язано з впливом небезпечних чи шкідливих виробничих факторів, що підтверджено медичним висновком.
Перелік обставин, за яких настає страховий випадок державного соціального страхування громадян від нещасного випадку на виробництві та професійного захворювання, визначений у додатку 6.
16. Обставинами, за яких нещасні випадки не визнаються такими, що пов'язані з виробництвом, є:
1) перебування за місцем постійного проживання на території польових і вахтових селищ;
2) використання в особистих цілях без відома роботодавця транспортних засобів, устаткування, інструментів, матеріалів тощо, які належать або використовуються підприємством (крім випадків, що сталися внаслідок їх несправності, що підтверджено відповідними висновками);
3) погіршення стану здоров'я внаслідок отруєння алкоголем, наркотичними засобами, токсичними чи отруйними речовинами, а також їх дії (асфіксія, інсульт, зупинка серця тощо), що підтверджено відповідним медичним висновком, якщо це не пов'язано із застосуванням таких речовин у виробничому процесі чи порушенням вимог щодо їх зберігання і транспортування, або якщо потерпілий, який перебував у стані алкогольного, токсичного чи наркотичного сп'яніння, до настання нещасного випадку був відсторонений від роботи відповідно до вимог правил внутрішнього трудового розпорядку підприємства або колективного договору;
4) алкогольне, токсичне чи наркотичне сп'яніння, не зумовлене виробничим процесом, що стало основною причиною нещасного випадку за відсутності технічних та організаційних причин його настання, що підтверджено відповідним медичним висновком;
5) скоєння злочину, що встановлено обвинувальним вироком суду або відповідною постановою слідчих органів;
6) природна смерть, смерть від загального захворювання або самогубство (крім випадків, зазначених у пункті 15 цього Порядку), що підтверджено висновками судово-медичної експертизи та/або слідчих органів.
17. Роботодавець або у разі, коли нещасний випадок стався з фізичною особою — підприємцем чи особою, що забезпечує себе роботою самостійно та застрахована у Фонді, керівник робочого органу виконавчої дирекції Фонду, який утворив комісію, повинен розглянути і затвердити примірник акта за формою Н-5 і Н-1 (у разі, коли нещасний випадок визнано таким, що пов'язаний з виробництвом) протягом доби після надходження матеріалів щодо результатів розслідування (далі — матеріали розслідування).
Матеріалами розслідування є акти за формою Н-5 і Н-1 (у разі, коли нещасний випадок визнано таким, що пов'язаний з виробництвом), наказ про утворення комісії, картка за формою П-5 (у разі виявлення гострого професійного захворювання (отруєння), пояснення потерпілого, осіб — свідків нещасного випадку та причетних до нього осіб (у разі їх наявності), копії документів про кваліфікацію працівника, проведення відповідних інструктажів та медичних оглядів, а також отримання завдання на виконання роботи, під час якої стався нещасний випадок (за наявності), а також у разі потреби витяги з експлуатаційної документації, схеми, фотографії, інші документи, що характеризують стан робочого місця (устаткування, апаратури, матеріалів тощо), висновок лікувально-профілактичного закладу про стан сп'яніння, наявність в організмі потерпілого алкоголю, наркотичних чи отруйних речовин.
На вимогу потерпілого або уповноваженої ним особи, яка представляє його інтереси, голова комісії зобов'язаний ознайомити їх з матеріалами розслідування.
18. Нещасні випадки реєструються у журналі за формою згідно з додатком 7 роботодавцем, а у разі, коли нещасний випадок стався з фізичною особою — підприємцем чи особою, що забезпечує себе роботою самостійно та застрахована у Фонді, робочим органом виконавчої дирекції Фонду, в якому зареєстровано таку особу.
19. Примірники затверджених актів за формою Н-5 і Н-1 протягом доби надсилаються роботодавцем:
керівникові (спеціалістові) служби охорони праці або посадовій особі (спеціалістові), на яку роботодавцем покладено виконання функцій з охорони праці підприємства, працівником якого є потерпілий;
потерпілому або уповноваженій ним особі, яка представляє його інтереси;
Фондові за місцезнаходженням підприємства, на якому стався нещасний випадок;
територіальному органові Держгірпромнагляду за місцезнаходженням підприємства, на якому стався нещасний випадок;
первинній організації профспілки, представник якої брав участь у роботі комісії, або уповноваженій найманими працівниками особі з питань охорони праці, якщо профспілка на підприємстві відсутня.
Копії актів за формою Н-5 і Н-1 надсилаються органові управління підприємства, а у разі його відсутності — місцевій держадміністрації.
У разі виявлення гострого професійного захворювання (отруєння) копія акта за формою Н-1 надсилається закладові державної санітарно-епідеміологічної служби, який здійснює санітарно-епідеміологічний нагляд за підприємством і веде облік випадків гострих професійних захворювань (отруєнь).
20. У разі проведення розслідування нещасного випадку, що стався з фізичною особою — підприємцем чи особою, що забезпечує себе роботою самостійно, робочий орган виконавчої дирекції Фонду, який утворив комісію, у день затвердження актів розслідування надсилає примірники затверджених актів за формою Н-5 і Н-1 (у разі, коли нещасний випадок визнано таким, що пов'язаний з виробництвом) і примірник картки за формою П-5 (у разі виявлення гострого професійного захворювання (отруєння):
потерпілому або уповноваженій ним особі, яка представляє його інтереси;
Фондові, в якому зареєстровано фізичну особу — підприємця чи особу, що забезпечує себе роботою самостійно, разом з матеріалами розслідування;
місцевій держадміністрації для здійснення заходів щодо запобігання подібним випадкам;
територіальному органові Держгірпромнагляду за місцем настання нещасного випадку;
профспілковій організації, представник якої брав участь у роботі комісії.
У разі виявлення гострого професійного захворювання (отруєння) копія акта за формою Н-1 надсилається разом з примірником картки за формою П-5 також закладові державної санітарно-епідеміологічної служби за місцем настання нещасного випадку, який веде облік гострих професійних захворювань (отруєнь).
21. Примірники актів за формою Н-5 і Н-1 (у разі, коли нещасний випадок визнано таким, що пов'язаний з виробництвом), примірник картки за формою П-5 (у разі виявлення гострого професійного захворювання (отруєння) разом з матеріалами розслідування зберігаються на підприємстві протягом 45 років, у разі реорганізації підприємства передаються його правонаступникові, який бере на облік нещасний випадок, а у разі ліквідації підприємства — до державного архіву.
У робочому органі виконавчої дирекції Фонду примірники актів за формою Н-5 і Н-1 (у разі, коли нещасний випадок визнано таким, що пов'язаний з виробництвом), примірник картки за формою П-5 (у разі виявлення гострого професійного захворювання (отруєння) зберігаються протягом 45 років.
22. Після закінчення періоду тимчасової непрацездатності або у разі смерті потерпілого внаслідок травми, одержаної під час нещасного випадку, роботодавець, який бере на облік нещасний випадок, або робочий орган виконавчої дирекції Фонду (у разі, коли нещасний випадок стався з фізичною особою — підприємцем чи особою, що забезпечує себе роботою самостійно) складає повідомлення про наслідки нещасного випадку за формою Н-2 (далі — повідомлення за формою Н-2) згідно з додатком 8 і надсилає його в 10-денний строк організаціям і особам, яким надсилалися акти за формою Н-5 і Н-1, а у разі смерті потерпілого внаслідок раніше отриманих травм або інших ушкоджень терміново подає письмове повідомлення про нещасний випадок згідно з додатком 2 установам, організаціям, яким надсилалися акти за формою Н-5 і Н-1.
Повідомлення за формою Н-2 обов'язково додається до акта за формою Н-1 і зберігається разом з ним відповідно до цього Порядку.
23. Нещасний випадок, про який своєчасно не повідомлено керівника підприємства чи роботодавця потерпілого або внаслідок якого втрата працездатності настала не одразу, розслідується і береться на облік згідно з цим Порядком протягом місяця після надходження заяви потерпілого чи уповноваженої ним особи, яка представляє його інтереси (незалежно від строку настання нещасного випадку).
У разі реорганізації підприємства, на якому стався такий нещасний випадок, розслідування проводиться його правонаступником, а у разі ліквідації підприємства встановлення факту настання нещасного випадку розглядається у судовому порядку.
Якщо факт настання нещасного випадку встановлено рішенням суду, розслідування організовує територіальний орган Держгірпромнагляду за місцем настання нещасного випадку та утворює комісію у складі не менш як чотири особи.
До складу комісії входять представник територіального органу Держгірпромнагляду (голова комісії) за місцем настання нещасного випадку та представники Фонду і місцевої держадміністрації за місцем настання нещасного випадку та первинної організації профспілки, членом якої є потерпілий, або представник територіального профоб'єднання за місцем настання нещасного випадку, якщо потерпілий не є членом профспілки.
У разі встановлення факту виявлення гострого професійного захворювання (отруєння) до складу комісії також входить представник закладу державної санітарно-епідеміологічної служби за місцем настання нещасного випадку.
Облік таких нещасних випадків ведеться місцевими держадміністраціями за місцезнаходженням підприємства.
24. Нещасний випадок, що стався на підприємстві з працівником іншого підприємства під час виконання ним завдання в інтересах свого підприємства, розслідується комісією, утвореною підприємством, на якому стався нещасний випадок, за участю представників підприємства, працівником якого є потерпілий. Такий нещасний випадок береться на облік підприємством, працівником якого є потерпілий.
Підприємство, на якому стався нещасний випадок, зберігає примірник акта за формою Н-5 протягом періоду, необхідного для здійснення передбачених актом заходів щодо усунення причин настання нещасного випадку, але не менш як один рік.
25. Нещасний випадок, що стався з працівником, який тимчасово переведений в установленому порядку на інше підприємство або виконував роботу за сумісництвом, розслідується і береться на облік підприємством, на яке працівника переведено або на якому він виконував роботу за сумісництвом.
26. Нещасний випадок, що стався з працівником під час виконання роботи під керівництвом посадових осіб підприємства, на якому він працює, на виділеній території, об'єкті, дільниці іншого підприємства, розслідується і береться на облік підприємством, працівником якого є потерпілий. У розслідуванні такого нещасного випадку бере участь представник підприємства, на якому стався нещасний випадок.
27. Нещасний випадок, що стався з працівником особового складу аварійно-рятувальної служби, залученим до роботи на об'єктах підприємства за договором (угодою) під керівництвом посадових осіб підприємства, розслідується і береться на облік зазначеним підприємством. У розслідуванні такого нещасного випадку бере участь представник аварійно-рятувальної служби.
28. Нещасний випадок, що стався з працівником Державної служби охорони чи іншим суб'єктом господарювання, який має ліцензію на надання послуг з охорони власності та громадян, під час виконання трудових (посадових) обов'язків, розслідується і береться на облік Державною службою охорони або суб'єктом господарювання. У розслідуванні такого нещасного випадку бере участь представник підприємства, на якому стався нещасний випадок.
29. Нещасний випадок, що стався з водієм транспортного засобу, який виконував роботи у складі зведеної транспортної колони, сформованої підприємством, розслідується зазначеним підприємством за участю представника підприємства, яке направило водія на роботи у складі зведеної транспортної колони. Такий нещасний випадок береться на облік підприємством, яке сформувало транспортну колону.
30. Нещасний випадок, що стався з учнем, студентом, курсантом, слухачем, аспірантом навчального закладу під час проходження виробничої практики або виконання робіт на підприємстві, в установі, організації під керівництвом їх посадових осіб, розслідується і береться ними на облік. У розслідуванні такого нещасного випадку бере участь представник навчального закладу.
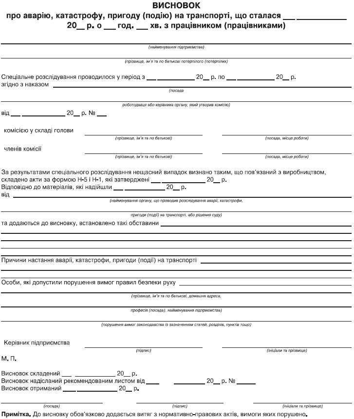
31. Нещасний випадок, що стався з водієм, машиністом, пілотом, а також членами екіпажу (бригади) транспортного засобу (автомобіля, поїзда, літака, морського та річкового судна тощо) під час перебування в рейсі внаслідок катастрофи, аварії чи пригоди (події) на транспорті, розслідується відповідно до цього Порядку з використанням матеріалів розслідування такої катастрофи, аварії чи пригоди (події) на транспорті, підготовлених відповідними органами.
Відомості про обставини і причини катастрофи, аварії чи пригоди (події) на транспорті, що призвела до настання нещасного випадку, а також осіб, які допустили порушення вимог законодавства, незалежно від порушення кримінальної справи передаються у 10-денний строк після закінчення розслідування відповідними органами підприємству, працівником якого є потерпілий, або робочому органові виконавчої дирекції Фонду (у разі, коли нещасний випадок стався з фізичною особою — підприємцем чи особою, що забезпечує себе роботою самостійно).
Якщо роботодавець або робочий орган виконавчої дирекції Фонду (у разі, коли нещасний випадок стався з фізичною особою — підприємцем чи особою, що забезпечує себе роботою самостійно) не отримав від відповідних органів зазначених відомостей протягом місяця з моменту катастрофи, аварії чи пригоди (події) на транспорті, комісія складає акти за формою Н-5 і Н-1 (у разі, коли нещасний випадок визнано таким, що пов'язаний з виробництвом) і в пункті 10 акта за формою Н-1 зазначає найменування органу, який безпосередньо проводить розслідування, безпосередніх учасників дорожнього руху та осіб, які користувалися транспортним засобом, але не причетні до керування.
Затверджені акти за формою Н-5 і Н-1 (у разі, коли нещасний випадок визнано таким, що пов'язаний з виробництвом) надсилаються відповідним органам в установленому порядку.
Після отримання роботодавцем або робочим органом виконавчої дирекції Фонду (у разі, коли нещасний випадок стався з фізичною особою — підприємцем чи особою, що забезпечує себе роботою самостійно) відомостей про обставини і причини катастрофи, аварії та пригоди (події) на транспорті, а також осіб, які допустили порушення вимог законодавства, ним складається висновок за формою Т-1 згідно з додатком 9.
Висновок за формою Т-1 надсилається у триденний строк після його погодження з територіальним органом Держгірпромнагляду та робочим органом виконавчої дирекції Фонду за місцем настання нещасного випадку роботодавцем або робочим органом виконавчої дирекції Фонду (у разі, коли нещасний випадок стався з фізичною особою — підприємцем чи особою, що забезпечує себе роботою самостійно) представникам органів та установ, яким надіслано акти за формою Н-5 і Н-1.
Матеріали розслідування катастрофи, аварії та пригоди (події) на транспорті, підготовлені відповідними органами, зберігаються разом з матеріалами розслідування.
Акт за формою Н-1 (у разі, коли нещасний випадок визнано таким, що пов'язаний з виробництвом) на кожного потерпілого під час перебування в рейсі внаслідок катастрофи, аварії та пригоди (події) на транспорті, що користувався транспортним засобом, але не причетний до керування, складається без використання зазначених матеріалів.
32. Нещасний випадок, що стався з громадянином України, іноземцем та особою без громадянства, що входять до складу екіпажу (бригади) транспортного засобу (автомобіля, поїзда, літака, морського та річкового судна тощо), під час перебування за кордоном (у портах, аеропортах, доках, станціях, судноремонтних заводах, майстернях тощо), розслідується відповідно до цього Порядку, якщо інше не передбачено міжнародними договорами України.
33. Контроль за своєчасністю та об'єктивністю проведення розслідування нещасних випадків, підготовкою матеріалів розслідування, веденням обліку нещасних випадків, вжиттям заходів до усунення причин нещасних випадків здійснюють органи державного управління, органи державного нагляду за охороною праці, виконавча дирекція Фонду та її робочі органи відповідно до компетенції.
Громадський контроль здійснюють профспілки через свої виборні органи і представників, а також уповноважені найманими працівниками особи з питань охорони праці у разі відсутності на підприємстві профспілки.
Зазначені у цьому пункті органи та особи мають право вимагати відповідно до компетенції від роботодавця проведення повторного (додаткового) розслідування нещасного випадку, затвердження чи перегляду затвердженого акта за формою Н-5 або Н-1, визнання нещасного випадку таким, що пов'язаний з виробництвом, і складення акта за формою Н-1 у разі, коли виявлено порушення вимог цього Порядку.
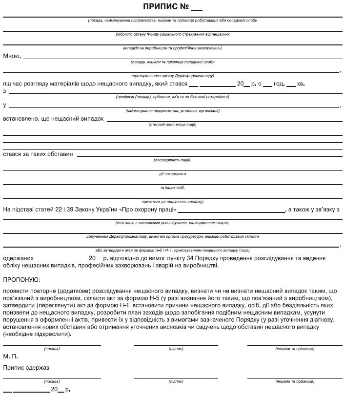
34. Посадова особа органу Держгірпромнагляду в разі відмови роботодавця скласти або затвердити акт за формою Н-5 або Н-1 чи незгоди потерпілого або уповноваженої ним особи, яка представляє його інтереси, із змістом зазначеного акта, надходження скарги або незгоди з висновками про обставини і причини настання нещасного випадку чи приховування факту настання нещасного випадку має право видавати обов'язкові для виконання роботодавцем або робочим органом виконавчої дирекції Фонду (у разі, коли нещасний випадок стався з фізичною особою — підприємцем чи особою, що забезпечує себе роботою самостійно) приписи за формою Н-9 згідно з додатком 10 щодо необхідності проведення розслідування (повторного розслідування) нещасного випадку, затвердження чи перегляду затвердженого акта за формою Н-5 або Н-1, визнання чи невизнання нещасного випадку таким, що пов'язаний з виробництвом, складення акта за формою Н-5 або Н-1.
Рішення посадової особи органу Держгірпромнагляду може бути оскаржено у судовому порядку. На час розгляду справи у суді дія припису за формою Н-9 зупиняється.
35. Роботодавець зобов'язаний у п'ятиденний строк після одержання припису за формою Н-9 видати наказ про вжиття зазначених у приписі заходів, а також притягти до відповідальності працівників, які допустили порушення вимог законодавства про охорону праці. Про виконання заходів роботодавець письмово повідомляє орган Держгірпромнагляду в установлений ним строк.
Спеціальне розслідування нещасних випадків
36. Спеціальному розслідуванню підлягають:
нещасні випадки із смертельними наслідками;
групові нещасні випадки, які сталися одночасно з двома і більше працівниками, незалежно від ступеня тяжкості отриманих ними травм;
випадки смерті працівників на підприємстві;
випадки зникнення працівників під час виконання трудових (посадових) обов'язків;
нещасні випадки, що спричинили тяжкі наслідки, у тому числі з можливою інвалідністю потерпілого.
Спеціальне розслідування нещасних випадків, що спричинили тяжкі наслідки, у тому числі з можливою інвалідністю потерпілого, проводиться за рішенням Держгірпромнагляду або його територіальних органів залежно від характеру і ступеня тяжкості травми.
Якщо територіальним органом Держгірпромнагляду протягом доби не прийнято рішення про проведення спеціального розслідування такого нещасного випадку, розслідування проводиться роботодавцем або Фондом за місцем настання нещасного випадку згідно з пунктами 3 — 32 цього Порядку.
Віднесення нещасних випадків до таких, що спричинили тяжкі наслідки, у тому числі з можливою інвалідністю потерпілого, здійснюється відповідно до Класифікатора розподілу травм за ступенем тяжкості, затвердженого МОЗ.
37. Про груповий нещасний випадок, нещасний випадок із смертельним наслідком, нещасний випадок, що спричинив тяжкі наслідки, випадок смерті або зникнення працівника під час виконання трудових (посадових) обов'язків роботодавець зобов'язаний протягом однієї години повідомити з використанням засобів зв'язку та протягом трьох годин подати на паперовому носії повідомлення згідно з додатком 2:
територіальному органові Держгірпромнагляду за місцезнаходженням підприємства;
органові прокуратури за місцем настання нещасного випадку;
Фондові за місцезнаходженням підприємства;
органові управління підприємства (у разі його відсутності — місцевій держадміністрації);
закладові державної санітарно-епідеміологічної служби, який здійснює санітарно-епідеміологічний нагляд за підприємством (у разі виявлення гострих професійних захворювань (отруєнь);
первинній організації профспілки незалежно від членства потерпілого в профспілці (у разі наявності на підприємстві кількох профспілок — профспілці, членом якої є потерпілий, а у разі відсутності профспілки — уповноваженій найманими працівниками особі з питань охорони праці);
органові галузевої профспілки вищого рівня, а у разі його відсутності — територіальному профоб'єднанню за місцем настання нещасного випадку;
органові з питань захисту населення і територій від надзвичайних ситуацій за місцем настання нещасного випадку (у разі необхідності).
У разі коли стався нещасний випадок із смертельним наслідком, нещасний випадок, що спричинив тяжкі наслідки, а також випадок смерті або зникнення під час виконання трудових (посадових) обов'язків фізичної особи — підприємця чи особи, що забезпечує себе роботою самостійно, робочий орган виконавчої дирекції Фонду зобов'язаний негайно передати з використанням засобів зв'язку повідомлення згідно з додатком 2:
територіальному органові Держгірпромнагляду за місцем настання нещасного випадку;
органові прокуратури за місцем настання нещасного випадку;
місцевій держадміністрації;
територіальному профоб'єднанню за місцем настання нещасного випадку;
закладові державної санітарно-епідеміологічної служби за місцем настання нещасного випадку (у разі виявлення гострого професійного захворювання (отруєння);
органові з питань захисту населення і територій від надзвичайних ситуацій (у разі необхідності).
Зазначені у цьому пункті органи та організації негайно повідомляють про нещасний випадок органи та організації вищого рівня.
Повідомлення надсилається також у разі, коли смерть потерпілого настала внаслідок нещасного випадку, що стався раніше. Спеціальне розслідування такого нещасного випадку проводиться в установленому порядку з використанням матеріалів раніше проведеного розслідування.
38. Спеціальне розслідування нещасного випадку (крім випадків, передбачених пунктом 39 цього Порядку) проводиться комісією із спеціального розслідування нещасного випадку (далі — спеціальна комісія), утвореною територіальним органом Держгірпромнагляду за місцезнаходженням підприємства або за місцем настання нещасного випадку, у разі, коли нещасний випадок стався з фізичною особою — підприємцем чи особою, що забезпечує себе роботою самостійно, або внаслідок дорожньо-транспортної пригоди (події) за погодженням з органами, представники яких входять до її складу.
До складу спеціальної комісії входять:
посадова особа територіального органу Держгірпромнагляду (голова комісії);
представник Фонду за місцезнаходженням підприємства або за місцем настання нещасного випадку в разі, коли нещасний випадок стався з фізичною особою — підприємцем чи особою, що забезпечує себе роботою самостійно, або внаслідок дорожньо-транспортної пригоди;
представник органу управління підприємства або місцевої держадміністрації у разі, коли зазначений орган відсутній або нещасний випадок стався з фізичною особою — підприємцем чи особою, що забезпечує себе роботою самостійно, або внаслідок дорожньо-транспортної пригоди;
представник роботодавця або роботодавець (у виняткових випадках);
представник первинної організації профспілки незалежно від членства потерпілого в профспілці (у разі наявності на підприємстві кількох профспілок — представник профспілки, членом якої є потерпілий, а у разі відсутності профспілки — уповноважена найманими працівниками особа з питань охорони праці);
представник профспілкового органу вищого рівня або територіального профоб'єднання за місцем настання нещасного випадку;
представник закладу державної санітарно-епідеміологічної служби, який здійснює санітарно-епідеміологічний нагляд за підприємством, або такого закладу за місцем настання нещасного випадку, якщо він стався з фізичною особою — підприємцем чи особою, що забезпечує себе роботою самостійно, у разі розслідування випадку гострого професійного захворювання (отруєння);
представник Держсільгоспінспекції у разі, коли нещасний випадок стався під час експлуатації зареєстрованих в ній сільськогосподарських машин (тракторів, самохідних шасі, самохідних сільськогосподарських, дорожньо-будівельних і меліоративних машин, тракторних причепів, обладнання тваринницьких ферм, посівних та збиральних машин).
Потерпілий, члени його сім'ї або уповноважена особа, яка представляє його інтереси, не входять до складу спеціальної комісії, але мають право брати участь у засіданнях спеціальної комісії, висловлювати свої пропозиції, додавати до матеріалів розслідування документи, що стосуються нещасного випадку, викладати особисту думку щодо обставин і причин нещасного випадку та одержувати від голови спеціальної комісії інформацію про хід проведення розслідування.
Голова спеціальної комісії зобов'язаний письмово поінформувати потерпілого, членів його сім'ї або уповноважену особу, яка представляє його інтереси, про їх права і запросити до співпраці.
Факт перебування потерпілого у трудових відносинах з роботодавцем, якщо відповідні документи не оформлені роботодавцем, але потерпілий фактично допущений до роботи, підтверджується в установленому порядку Держпраці на запит голови спеціальної комісії або у судовому порядку.
Роботодавець (у разі, коли постраждав роботодавець, орган, до сфери управління якого належить підприємство, а у разі його відсутності — місцева держадміністрація або виконавчий орган місцевого самоврядування) зобов'язаний створити належні умови (надати приміщення, засоби зв'язку, автотранспорт тощо) і сприяти роботі спеціальної комісії з метою своєчасного і об'єктивного спеціального розслідування нещасного випадку.
39. Спеціальне розслідування групового нещасного випадку, під час якого загинуло від двох до чотирьох осіб, проводиться спеціальною комісією, яка утворюється Держгірпромнаглядом або за дорученням його територіальним органом і до складу якої входять представники органів, зазначених в абзацах третьому — дев'ятому пункту 37 цього Порядку, за погодженням з такими органами.
Спеціальне розслідування групового нещасного випадку, під час якого загинуло п'ять і більше осіб або травмовано десять і більше осіб, проводиться спеціальною комісією, яка утворюється Держгірпромнаглядом. До складу такої комісії входять керівники Держгірпромнагляду, органу управління підприємства, місцевого органу виконавчої влади, виконавчої дирекції Фонду, галузевого або територіального об'єднання профспілок, представники роботодавця, відповідних первинних організацій профспілок, уповноважені найманими працівниками особи з питань охорони праці (у разі відсутності на підприємстві профспілки), а також представники відповідного органу з питань захисту населення і територій від надзвичайних ситуацій, закладів та установ охорони здоров'я та інших органів (у разі необхідності).
Спеціальне розслідування нещасних випадків, що сталися на ядерних установках, підконтрольних Держатомрегулюванню, проводиться комісією, яка утворюється Держатомрегулюванням.
40. Спеціальне розслідування нещасних випадків, що сталися під час катастрофи, аварії чи пригоди (події) на транспорті, проводиться з обов'язковим використанням матеріалів розслідування, підготовлених відповідними органами в установленому порядку.
Відомості про обставини і причини катастрофи, аварії чи пригоди (події) на транспорті, що призвели до нещасного випадку, а також осіб, які допустили порушення вимог законодавства, незалежно від порушення кримінальної справи передаються органами, які в установленому порядку проводять розслідування, у 10-денний строк після його закінчення голові спеціальної комісії.
Якщо голова спеціальної комісії не отримав протягом місяця з моменту катастрофи, аварії чи пригоди (події) на транспорті від зазначених органів таких відомостей, спеціальна комісія складає акти за формою Н-5 і Н-1 (у разі, коли нещасний випадок визнано таким, що пов'язаний з виробництвом) і в пункті 10 акта за формою Н-1 зазначає найменування органу, який проводить розслідування, безпосереднього учасника дорожнього руху та осіб, які користувалися транспортним засобом, але не причетні до керування.
Затверджені акти за формою Н-5 і Н-1 (у разі, коли нещасний випадок визнано таким, що пов'язаний з виробництвом) надсилаються відповідним органам в установленому порядку.
Після отримання зазначених відомостей голова спеціальної комісії чи за його дорученням роботодавець або робочий орган виконавчої дирекції Фонду (у разі, коли нещасний випадок стався з фізичною особою — підприємцем, чи особою, що забезпечує себе роботою самостійно) складає висновок за формою Т-1.
Висновок за формою Т-1 надсилається у триденний строк після погодження з територіальним органом Держгірпромнагляду та Фондом за місцем настання нещасного випадку, представники яких брали участь у спеціальному розслідуванні, всім особам, яким надіслано акти за формою Н-5 і Н-1.
Матеріали розслідування катастрофи, аварії та пригоди (події) на транспорті, підготовлені відповідними органами, зберігаються разом з матеріалами спеціального розслідування.
Акт за формою Н-1 (у разі, коли нещасний випадок визнано таким, що пов'язаний з виробництвом) на потерпілих під час перебування в рейсі внаслідок катастрофи, аварії чи пригоди (події) на транспорті, що користувалися транспортним засобом, але не причетні до керування, складається без використання зазначених матеріалів.
41. Спеціальне розслідування нещасного випадку проводиться протягом 10 робочих днів. У разі потреби зазначений строк може бути продовжений органом, який утворив спеціальну комісію.
42. Спеціальна комісія зобов'язана:
1) обстежити місце, де стався нещасний випадок, одержати письмові чи усні пояснення від роботодавця і його представників, посадових осіб, працівників підприємства, потерпілого (якщо це можливо), опитати осіб — свідків нещасного випадку та осіб, причетних до нещасного випадку;
2) визначити відповідність умов праці та її безпеки вимогам законодавства про охорону праці;
3) визначити необхідність проведення лабораторних досліджень, випробувань, технічних розрахунків, експертизи для встановлення причини нещасного випадку і розроблення плану заходів щодо запобігання подібним нещасним випадкам;
4) вивчити первинну медичну документацію (журнал реєстрації травматологічного пункту лікувально-профілактичного закладу, звернення потерпілого до медичного пункту або медико-санітарної частини підприємства, амбулаторну картку та історію хвороби, документацію відділу кадрів, відділу (служби) охорони праці тощо);
5) з'ясувати обставини і причини настання нещасного випадку;
6) визначити, пов'язаний чи не пов'язаний нещасний випадок з виробництвом;
7) установити осіб, які допустили порушення вимог законодавства про охорону праці, а також розробити план заходів щодо запобігання подібним нещасним випадкам;
8) зустрітися з потерпілим (якщо це можливо) або членами його сім'ї чи уповноваженою особою, яка представляє його інтереси, щодо роз'яснення їх прав у зв'язку з настанням нещасного випадку.
43. За рішенням спеціальної комісії у разі необхідності проведення лабораторних досліджень, випробувань, технічних розрахунків, експертизи, у тому числі судово-медичної експертизи, для встановлення причин нещасного випадку і розроблення плану заходів щодо запобігання подібним нещасним випадкам органом, який утворив спеціальну комісію, утворюється експертна комісія із залученням до її роботи спеціалістів науково-дослідних, проектно-конструкторських, експертних та інших організацій, органів виконавчої влади, а також незалежних експертів.
Підприємство відшкодовує витрати, пов'язані з діяльністю експертної комісії та залучених до її роботи експертів.
Порядок утворення та роботи експертної комісії визначається відповідно до законодавства.
Після ознайомлення з необхідними матеріалами, обстеження місця, де стався нещасний випадок, та проведення лабораторних досліджень, випробувань, технічних розрахунків, експертизи експертна комісія складає висновок, в якому стисло викладає обставини, зазначає причини нещасного випадку, допущені порушення вимог нормативно-правових актів з охорони праці, а також заходи щодо запобігання подібним нещасним випадкам.
44. Лікувально-профілактичні установи, заклади судово-медичної експертизи, органи прокуратури, органи внутрішніх справ та інші органи зобов'язані безоплатно надавати на запит голови спеціальної комісії матеріали та висновки щодо нещасного випадку у визначені цим Порядком строки, а у разі, коли необхідні висновки судово-гістологічної та судово-токсикологічної експертизи, — після проведення відповідних досліджень.
45. Під час спеціального розслідування роботодавець зобов'язаний:
1) зробити за рішенням спеціальної комісії фотознімки місця, де стався нещасний випадок, пошкоджених об'єктів, устаткування, інструментів, а також надати спеціальній комісії технічну документацію та інші необхідні матеріали;
2) створити належні умови для роботи спеціальної комісії (забезпечити приміщенням, засобами зв'язку, оргтехнікою, автотранспортом, канцелярським приладдям);
3) організувати у разі проведення розслідування випадків гострого професійного захворювання (отруєння) медичне обстеження інших працівників відповідної дільниці підприємства;
4) забезпечити проведення необхідних лабораторних досліджень, випробувань, технічних розрахунків, експертизи тощо;
5) організувати друкування, тиражування і оформлення в необхідній кількості матеріалів спеціального розслідування, зазначених у пунктах 50 і 51 цього Порядку;
6) організувати доставку тіла загиблого працівника, його ідентифікацію та відшкодувати пов'язані з цим витрати.
46. Роботодавець, працівником якого є потерпілий, компенсує витрати, пов'язані з діяльністю спеціальної комісії та залучених до її роботи експертів, інших спеціалістів. Відшкодування витрат, пов'язаних з відрядженням працівників, які є членами спеціальної комісії або залучені до її роботи, здійснюється роботодавцем у розмірах, передбачених нормами відшкодування витрат на відрядження за рахунок валових витрат шляхом переказу відповідної суми на реєстраційні рахунки бюджетних установ в органах Державної казначейської служби та поточні рахунки суб'єктів господарювання у банківських установах України.
47. За результатами спеціального розслідування складаються акти за формою Н-5 і Н-1 (у разі, коли нещасний випадок визнано таким, що пов'язаний з виробництвом), картка за формою П-5 (у разі виявлення гострого професійного захворювання (отруєння)) стосовно кожного потерпілого, а також оформляються інші матеріали спеціального розслідування, зазначені у пунктах 50 і 51 цього Порядку.
Кількість примірників актів за формою Н-5 і Н-1, карток за формою П-5 визначається залежно від кількості потерпілих та органів, яким вони надсилаються відповідно до пунктів 52 і 53 цього Порядку.
В акті за формою Н-5 зазначається категорія аварії, внаслідок якої стався нещасний випадок.
Акти за формою Н-5 і Н-1 підписуються головою і всіма членами спеціальної комісії протягом п'яти днів після оформлення матеріалів спеціального розслідування. У разі незгоди із змістом акта (актів) член спеціальної комісії підписує його (їх) з відміткою про наявність окремої думки, яку викладає письмово. Окрема думка додається до акта за формою Н-5 і є його невід'ємною частиною.
На вимогу потерпілого або членів його сім'ї чи уповноваженої особи, яка представляє його інтереси, голова спеціальної комісії зобов'язаний ознайомити їх з матеріалами спеціального розслідування.
У разі настання групового нещасного випадку із смертельними наслідками, який стався внаслідок аварії, за умови визнання спеціальною комісією нещасного випадку таким, що пов'язаний з виробництвом, складаються, підписуються і затверджуються протягом десяти робочих днів з моменту її утворення тимчасові акти за формою Н-1 на кожного потерпілого для здійснення страхових виплат. Після завершення спеціального розслідування такі акти замінюються на постійні.
48. У разі коли спеціальна комісія з розслідування випадку зникнення потерпілого під час виконання ним трудових (посадових) обов'язків зробить висновок, що зникнення зумовлено настанням нещасного випадку, пов'язаного з виробництвом, акт за формою Н-5 з таким висновком видається сім'ї потерпілого або уповноваженій особі, яка представляє її інтереси, для звернення до суду із заявою про оголошення потерпілого померлим.
Після оголошення судом потерпілого померлим орган Держгірпромнагляду, який утворив дану комісію, відповідно до акта за формою Н-5 складає акт за формою Н-1, а роботодавець бере такий нещасний випадок на облік згідно з цим Порядком.
49. Керівник органу, який утворив спеціальну комісію, повинен розглянути і затвердити примірники актів за формою Н-5 і Н-1 протягом доби після надходження матеріалів спеціального розслідування.
50. До матеріалів спеціального розслідування, крім випадків, зазначених у пункті 51 цього Порядку, належать:
копія рішення Кабінету Міністрів України про утворення спеціальної комісії з розслідування групового нещасного випадку (аварії з наявністю потерпілих), якщо таке рішення приймалося;
копія наказу органу Держгірпромнагляду або Держатомрегулювання про утворення спеціальної комісії;
примірник акта за формою Н-5;
примірник акта за формою Н-1 (у разі, коли нещасний випадок визнано таким, що пов'язаний з виробництвом), примірник картки за формою П-5 (у разі виявлення гострого професійного захворювання (отруєння) стосовно кожного потерпілого;
протокол огляду місця, де стався нещасний випадок, згідно з додатком 11;
ескіз місця, де стався нещасний випадок, згідно з додатком 12, необхідні плани, схеми, фотознімки такого місця, пошкоджених об'єктів, устаткування, інструментів тощо;
висновок експертної комісії у разі її утворення та висновок експертизи (науково-технічної, медичної тощо), якщо вона проводилася;
медичний висновок про причини смерті або характер і ступінь тяжкості травми потерпілого відповідно до Класифікатора розподілу травм за ступенем тяжкості, затвердженого МОЗ, а також про стан алкогольного, токсичного чи наркотичного сп'яніння потерпілого;
інформація про проходження потерпілим первинного та періодичного медичного огляду;
висновок лікувально-профілактичного закладу про встановлення гострого професійного захворювання (отруєння);
результати додаткових санітарно-гігієнічних досліджень факторів виробничого середовища і трудового процесу, проведених установами, організаціями, лабораторіями, яким надано право проводити такі дослідження (у разі їх проведення);
протоколи рішень спеціальної комісії про розподіл функцій між членами комісії та про утворення експертної комісії;
протоколи опитування та пояснювальні записки потерпілих, свідків нещасного випадку та інших осіб, причетних до нещасного випадку, згідно з додатком 13;
копії документів про проходження потерпілим навчання та інструктажів з питань охорони праці;
витяги із законів та інших нормативно-правових актів з питань охорони праці, вимоги яких порушені;
копії приписів, розпоряджень, протоколів про адміністративні правопорушення, що стосуються нещасного випадку, виданих роботодавцеві посадовими особами органів державного нагляду за охороною праці до настання нещасного випадку і під час його розслідування;
протокол зустрічі членів спеціальної комісії з членами сім'ї потерпілого чи уповноваженою особою, яка представляє їх інтереси;
довідка про матеріальну шкоду, заподіяну внаслідок настання нещасного випадку, та надання потерпілому чи членам його сім'ї матеріальної допомоги.
51. У разі проведення спеціального розслідування випадку смерті працівника під час виконання ним трудових (посадових) обов'язків матеріали розслідування повинні містити:
копію наказу органу Держгірпромнагляду або Держатомрегулювання про утворення спеціальної комісії;
примірник акта за формою Н-5;
примірник акта за формою Н-1 (у разі, коли нещасний випадок визнано таким, що пов'язаний з виробництвом);
примірник картки за формою П-5 (у разі виявлення гострого професійного захворювання (отруєння));
медичний висновок про причини смерті, а також стан алкогольного, токсичного чи наркотичного сп'яніння;
протокол огляду місця, де стався нещасний випадок, за встановленою формою;
протокол зустрічі членів спеціальної комісії з членами сім'ї потерпілого чи уповноваженою особою, яка представляє їх інтереси;
інші документи залежно від обставин і причин настання нещасного випадку.
52. Роботодавець зобов'язаний у п'ятиденний строк після затвердження акта за формою Н-5:
видати наказ про вжиття запропонованих спеціальною комісією заходів та запобігання виникненню подібних нещасних випадків, який обов'язково додається до матеріалів спеціального розслідування, а також притягти згідно із законодавством до відповідальності працівників, які допустили порушення вимог законодавства про охорону праці, посадових інструкцій та інших актів підприємств з цих питань. Про вжиття запропонованих заходів роботодавець повідомляє у письмовій формі органи, які брали участь у проведенні розслідування, у зазначені в акті за формою Н-5 строки;
надіслати за рахунок підприємства копії матеріалів спеціального розслідування, зазначених у пунктах 50 і 51 цього Порядку, органам прокуратури, іншим органам, представники яких брали участь у проведенні спеціального розслідування, Держгірпромнагляду, Фонду, а у разі проведення розслідування випадків виявлення гострого професійного захворювання (отруєння) також установі державної санітарно-епідеміологічної служби, яка здійснює санітарно-епідеміологічний нагляд за підприємством, де працює потерпілий.
Примірники затверджених актів за формою Н-5 і Н-1 (у разі, коли нещасний випадок визнано таким, що пов'язаний з виробництвом) і примірник картки за формою П-5 (у разі виявлення гострого професійного захворювання (отруєння)) надсилається:
потерпілому, членам його сім'ї або уповноваженій особі, яка за довіреністю представляє його інтереси;
Фондові за місцезнаходженням підприємства;
територіальному органові Держгірпромнагляду за місцезнаходженням підприємства.
Примірники затверджених актів Н-5 і Н-1 (у разі, коли нещасний випадок визнано таким, що пов'язаний з виробництвом) і примірник картки за формою П-5 (у разі виявлення гострого професійного захворювання (отруєння)) разом з іншими матеріалами спеціального розслідування зберігаються на підприємстві протягом 45 років, у разі реорганізації підприємства передаються його правонаступникові, який бере на облік нещасний випадок, а у разі ліквідації підприємства — до державного архіву.
53. У разі проведення спеціального розслідування нещасного випадку, який стався з фізичною особою — підприємцем чи особою, що забезпечує себе роботою самостійно, примірники затверджених актів за формою Н-5 і Н-1 (у разі, коли нещасний випадок визнано таким, що пов'язаний з виробництвом) і примірник картки за формою П-5 (у разі виявлення гострого професійного захворювання (отруєння)) надсилаються у п'ятиденний строк з моменту затвердження акта за формою Н-5:
потерпілому, членам його сім'ї або особі, яка за довіреністю представляє його інтереси;
Фондові, в якому зареєстровано фізичну особу — підприємця чи особу, що забезпечує себе роботою самостійно, разом з матеріалами спеціального розслідування.
Копії матеріалів спеціального розслідування надсилаються органам прокуратури, Держгірпромнагляду, іншим органам, представники яких брали участь у проведенні спеціального розслідування.
У разі виявлення гострого професійного захворювання (отруєння) копія акта за формою Н-1 надсилається разом з примірником картки за формою П-5 також закладові державної санітарно-епідеміологічної служби за місцем настання нещасного випадку, який веде облік випадків гострих професійних захворювань (отруєнь).
Примірники затверджених актів Н-5 і Н-1 (у разі, коли нещасний випадок визнано таким, що пов'язаний з виробництвом) і примірник картки за формою П-5 (у разі виявлення гострого професійного захворювання (отруєння)) разом з іншими матеріалами спеціального розслідування зберігаються у робочому органі виконавчої дирекції Фонду протягом 45 років, у разі реорганізації робочого органу передаються його правонаступникові, який бере на облік нещасний випадок, а у разі ліквідації робочого органу — до державного архіву.
54. У разі надходження від роботодавця, робочого органу Фонду, представника профспілки, потерпілого або члена його сім'ї чи уповноваженої ним особи, яка представляє його інтереси, скарги або їх незгоди з висновками спеціальної комісії щодо обставин і причин настання нещасного випадку керівник Держгірпромнагляду або його територіального органу з метою забезпечення об'єктивності проведення спеціального розслідування має право призначити повторне (додаткове) спеціальне розслідування нещасного випадку спеціальною комісією в іншому складі, за результатами її роботи скасувати акти за формою Н-5 і Н-1, притягти до відповідальності посадових осіб підприємства та органів Держгірпромнагляду, які порушили вимоги цього Порядку.
Рішення спеціальної комісії в іншому складі щодо результатів повторного (додаткового) спеціального розслідування обставин і причин настання нещасного випадку може бути оскаржено лише у судовому порядку.
55. Орган управління підприємства, а у разі його відсутності місцева держадміністрація після одержання матеріалів спеціального розслідування повинні розглянути питання щодо обставин і причин настання нещасного випадку та розробити план заходів щодо запобігання подібним нещасним випадкам.
56. За зверненням Держгірпромнагляду або його територіальних органів органи прокуратури подають інформацію про рішення, яке прийняте за результатами розгляду матеріалів спеціального розслідування.
Звітність та інформація про нещасні випадки, аналіз їх причин
57. Роботодавець на підставі актів за формою Н-5 і Н-1 подає державну статистичну звітність про потерпілих за формою, затвердженою Держстатом, та несе відповідальність за її достовірність.
58. Роботодавець зобов'язаний провести аналіз причин настання нещасних випадків за підсумками кварталу, півріччя і року та розробити і виконати план заходів щодо запобігання подібним нещасним випадкам.
59. Органи управління підприємств, місцеві держадміністрації зобов'язані на підставі актів за формою Н-5 і Н-1 провести аналіз обставин і причин настання нещасних випадків за підсумками півріччя і року, довести його результати до відома підприємств, що належать до сфери їх управління, а також розробити і виконати план заходів щодо запобігання подібним нещасним випадкам.
60. Органи державного управління охороною праці, органи державного нагляду за охороною праці, виконавча дирекція Фонду та її робочі органи, профспілки перевіряють відповідно до компетенції ефективність роботи з профілактики нещасних випадків і вживають заходів до усунення виявлених порушень вимог цього Порядку згідно з законодавством.
61. Облік ведуть:
підприємства та їх органи управління — усіх нещасних випадків;
робочі органи виконавчої дирекції Фонду — страхових нещасних випадків;
органи державного пожежного нагляду — осіб, які постраждали під час пожежі;
заклади державної санітарно-епідеміологічної служби та робочі органи виконавчої дирекції Фонду — облік осіб, які постраждали від гострих професійних захворювань (отруєнь);
Держгірпромнагляд, інші центральні органи виконавчої влади, місцеві держадміністрації — оперативний облік нещасних випадків, які підлягають спеціальному розслідуванню.
Збирання статистичних даних та розроблення форм державної статистичної звітності про осіб, які постраждали внаслідок нещасних випадків на підприємствах, здійснюють органи державної статистики.
Встановлення зв'язку захворювання з умовами праці, розслідування причин та облік випадків хронічних професійних захворювань
62. Усі випадки хронічних професійних захворювань незалежно від строку їх настання підлягають розслідуванню.
63. До хронічного професійного захворювання належить захворювання, що виникло внаслідок провадження професійної діяльності працівника та зумовлюється виключно або переважно впливом шкідливих факторів виробничого середовища і трудового процесу, пов'язаних з роботою.
До хронічного професійного захворювання належить також захворювання, що виникло після багатократного та/або тривалого впливу шкідливих виробничих факторів. Хронічне професійне захворювання не завжди супроводжується втратою працездатності.
Випадки професійних інфекційних захворювань та хронічних професійних інтоксикацій розслідуються як хронічні професійні захворювання.
64. Віднесення захворювання до професійного здійснюється відповідно до процедури встановлення зв'язку захворювання з умовами праці згідно з додатком 14 та переліку професійних захворювань, затвердженого постановою Кабінету Міністрів України від 8 листопада 2000 р. № 1662.
Перелік установ і закладів, які мають право встановлювати остаточний діагноз професійних захворювань, переглядається кожні п'ять років та затверджується МОЗ.
65. У разі підозри на професійне захворювання лікувально-профілактичний заклад направляє працівника на консультацію до лікаря-профпатолога Автономної Республіки Крим, області або міста з документами, перелік яких визначено у додатку 14.
66. Для встановлення остаточного діагнозу та зв'язку захворювання з впливом шкідливих факторів виробничого середовища і трудового процесу лікар-профпатолог Автономної Республіки Крим, області або міста направляє хворого до спеціалізованого профпатологічного лікувально-профілактичного закладу з відповідними документами.
До спеціалізованого профпатологічного лікувально-профілактичного закладу в разі потреби для встановлення діагнозу може направлятися також хворий, який проходить обстеження у будь-якому науковому інституті (установі) медичного профілю.
67. Спеціалізовані профпатологічні лікувально-профілактичні заклади проводять амбулаторне та/або стаціонарне обстеження хворих і встановлюють діагноз професійного захворювання.
Діагноз професійного захворювання може бути змінений або відмінений спеціалізованим профпатологічним лікувально-профілактичним закладом, який його встановив раніше, на підставі результатів додатково поданих відомостей або проведених досліджень та повторної експертизи. Відповідальність за встановлення або відміну діагнозу професійного захворювання покладається на керівників таких закладів та голів лікарсько-експертних комісій.
Рішення про підтвердження або відміну раніше встановленого діагнозу професійного захворювання оформляється висновком лікарсько-експертної комісії.
68. У спірних випадках остаточне рішення щодо встановлення діагнозу професійного захворювання приймається центральною лікарсько-експертною комісією державної установи «Інститут медицини праці Національної академії медичних наук України», у роботі якої мають право брати участь фахівці відповідного закладу державної санітарно-епідеміологічної служби, лікувально-профілактичного закладу, спеціалізованого лікувально-профілактичного закладу, робочого органу виконавчої дирекції Фонду, спеціалісти (представники) підприємства, первинної організації відповідної профспілки або уповноважена найманими працівниками особа з питань охорони праці (у разі, коли профспілка на підприємстві відсутня), представники вищого органу профспілки.
Оскарження рішення зазначеної комісії у разі незгоди хворого або роботодавця здійснюється у судовому порядку.
69. За наявності ознак стійкої втрати професійної працездатності внаслідок професійного захворювання лікувально-профілактичний заклад, що надає медичну допомогу працівникам підприємства, на якому працює хворий, або лікувально-профілактичний заклад за місцем його проживання направляє хворого на медико-соціальну експертну комісію для встановлення ступеня стійкої втрати професійної працездатності.
Повідомлення про професійне захворювання (отруєння)
70. Спеціалізованими профпатологічними лікувально-профілактичними закладами стосовно кожного хворого складається повідомлення про професійне захворювання (отруєння) за формою П-3 (далі — повідомлення за формою П-3) згідно з додатком 15.
Повідомлення за формою П-3 протягом трьох днів після встановлення діагнозу надсилається керівникові підприємства, шкідливі виробничі фактори на якому призвели до виникнення професійного захворювання, закладові державної санітарно-епідеміологічної служби, який здійснює державний санітарно-епідеміологічний нагляд за підприємством, робочому органові виконавчої дирекції Фонду за місцезнаходженням підприємства, а також профпатологу, який направив хворого до спеціалізованого лікувально-профілактичного закладу.
У разі коли хворий працював на кількох підприємствах, де були умови для розвитку професійного захворювання, або за кількома професіями, під час роботи за якими були умови для розвитку професійного захворювання, повідомлення за формою П-3 надсилається на останнє підприємство, де він працював за професією, під час роботи за якою були умови для розвитку професійного захворювання.
71. У разі реорганізації підприємства, шкідливі виробничі фактори на якому призвели до розвитку професійного захворювання, повідомлення за формою П-3 надсилається його правонаступникові, а у разі ліквідації підприємства без правонаступника — місцевій держадміністрації за місцем реєстрації підприємства.
72. Працівникові видається під розписку медичний висновок лікарсько-експертної комісії спеціалізованого профпатологічного лікувально-профілактичного закладу про наявність (відсутність) у нього професійного захворювання за формою згідно з додатком 16. Медичний висновок також надсилається профпатологу за місцем роботи працівника або проживання (якщо він не працює), який направляв його до спеціалізованого профпатологічного лікувально-профілактичного закладу.
73. Відповідальність за своєчасне повідомлення про професійне захворювання (отруєння) несе керівник спеціалізованого профпатологічного лікувально-профілактичного закладу, який встановив або відмінив діагноз професійного захворювання.
Порядок розслідування обставин і причин виникнення професійних захворювань
74. Головний державний санітарний лікар Автономної Республіки Крим, області або міста утворює протягом трьох днів після отримання повідомлення за формою П-3 комісію з проведення розслідування причин виникнення професійного захворювання (далі — комісія з розслідування), до складу якої входять представник закладу державної санітарно-епідеміологічної служби, який здійснює санітарно-епідеміологічний нагляд за підприємством (голова комісії), представники лікувально-профілактичного закладу, роботодавця, первинної організації відповідної профспілки або уповноважена найманими працівниками особа з питань охорони праці (у разі, коли профспілка на підприємстві відсутня), вищого органу профспілки, робочого органу виконавчої дирекції Фонду за місцезнаходженням підприємства, а також у разі потреби представники інших органів.
Зазначені заклади, органи та організації протягом однієї доби з моменту одержання повідомлення за формою П-3 повинні надіслати закладові державної санітарно-епідеміологічної служби письмову інформацію про прізвище, ім'я, по батькові та посаду представника (представників), який пропонується до складу комісії з розслідування.
75. У разі ліквідації підприємства без правонаступника до складу комісії з розслідування входить представник місцевої держадміністрації за місцем реєстрації підприємства, шкідливі виробничі фактори на якому призвели до професійного захворювання.
76. Розслідування випадку професійного захворювання проводиться протягом десяти робочих днів після утворення комісії з розслідування.
Якщо з об'єктивних причин розслідування не може бути проведене у зазначений строк, він може бути продовжений керівником закладу, що утворив комісію, але не більш як на один місяць. Копія відповідного наказу надсилається всім членам комісії з розслідування.
77. У розслідуванні причин виникнення професійного захворювання інфекційної та паразитарної етіології обов'язково беруть участь фахівці з епідеміології та паразитології закладу державної санітарно-епідеміологічної служби, який здійснює санітарно-епідеміологічний нагляд за підприємством.
78. Розслідування причин виникнення двох та більше професійних захворювань, на які страждає одна особа, проводиться у міру встановлення професійного характеру таких захворювань за наявності повідомлення за формою П-3. В акті розслідування зазначається, чи було раніше у такої особи виявлено професійне захворювання, діагноз, рік його виявлення, а також усі супутні захворювання загального профілю.
79. Роботодавець зобов'язаний в установлений для проведення розслідування строк подати комісії з розслідування:
1) відомості про професійні обов'язки працівника;
2) документи і матеріали, які характеризують умови праці на робочому місці (дільниці, цеху);
3) необхідні результати експертизи, лабораторних досліджень для проведення оцінки умов праці;
4) матеріали, що підтверджують проведення інструктажів з охорони праці;
5) копії документів, що підтверджують видачу працівникові засобів індивідуального захисту;
6) приписи або інші документи, які раніше видані закладами державної санітарно-епідеміологічної служби і стосуються даного професійного захворювання;
7) результати медичних оглядів працівника (працівників);
8) інші матеріали.
80. Роботодавець повинен забезпечити комісію з розслідування приміщенням, транспортними засобами і засобами зв'язку, організувати друкування, тиражування і оформлення в необхідній кількості матеріалів розслідування, у тому числі акта розслідування хронічного професійного захворювання.
81. Комісія з розслідування зобов'язана:
1) розробити програму розслідування причин виникнення професійного захворювання;
2) розподілити функції між членами комісії;
3) розглянути питання щодо необхідності залучення до її роботи експертів;
4) провести розслідування обставин і причин виникнення професійного захворювання;
5) скласти акт розслідування хронічного професійного захворювання.
82. Комісія з розслідування проводить оцінку умов праці працівника за матеріалами раніше проведеної атестації робочих місць, результатів обстежень і досліджень, проведених відповідними закладами державної санітарно-епідеміологічної служби або санітарними лабораторіями, атестованими МОЗ в установленому порядку, вивчає приписи органів державного нагляду за охороною праці, подання посадових осіб робочих органів виконавчої дирекції Фонду і представників профспілок, інструкції з охорони праці працівників, заключні акти періодичних медичних оглядів, накази та розпорядження адміністрації підприємства про порушення працівником вимог правил та інструкцій з охорони праці, строків проходження періодичних медичних оглядів, картки обліку індивідуальних доз опромінення на робочому місці джерелами радіаційного випромінювання, одержує письмові пояснення посадових осіб, інших працівників з питань, пов'язаних з розслідуванням причин виникнення професійного захворювання, а у разі потреби вимагає проведення додаткових досліджень на робочому місці та бере участь у них, вивчає первинну медичну документацію щодо хворого.
83. Розслідування причин виникнення професійних захворювань у працівників, направлених на роботу за межі підприємства, проводиться комісією з розслідування, головою якої є представник закладу державної санітарно-епідеміологічної служби, що здійснює державний санітарно-епідеміологічний нагляд за підприємством, шкідливі виробничі фактори на якому призвели до виникнення професійного захворювання. Підприємство, де виявлено професійне захворювання, повинно повідомити про це підприємство, працівником якого є хворий, та робочий орган виконавчої дирекції Фонду.
У роботі комісії з розслідування такого випадку обов'язково беруть участь представники підприємства, працівником якого є хворий, первинної організації відповідної профспілки або уповноважена найманими працівниками особа з питань охорони праці (у разі, коли профспілка на підприємстві відсутня), представник вищого профспілкового органу, робочого органу виконавчої дирекції Фонду за місцезнаходженням підприємства.
84. Встановлення професійного захворювання в осіб, які працювали за межами України на підприємствах колишнього СРСР, проводиться згідно з пунктами 64 — 69 цього Порядку на підставі нотаріально завіреної копії трудової книжки.
85. У разі виявлення професійного захворювання у непрацюючих пенсіонерів, які працювали на території України, розслідування проводиться згідно з пунктами 74 — 83 цього Порядку на підприємстві, шкідливі виробничі фактори на якому призвели до виникнення професійного захворювання.
Процедура оформлення акта проведення розслідування причин виникнення хронічного професійного захворювання
86. За результатами розслідування комісія складає акт проведення розслідування причин виникнення хронічного професійного захворювання за формою П-4 (далі — акт за формою П-4) згідно з додатком 17.
Акт за формою П-4 є документом, в якому зазначаються основні умови, обставини і причини виникнення професійного захворювання, заходи щодо запобігання розвитку професійного захворювання та забезпечення нормалізації умов праці, а також встановлюються особи, які не виконали відповідні вимоги законодавства про охорону праці і про забезпечення санітарного та епідемічного благополуччя населення.
87. Акт за формою П-4, підписаний членами комісії з розслідування, затверджується головним державним санітарним лікарем Автономної Республіки Крим, області, міста, району, на водному, залізничному та повітряному транспорті, Міноборони, МВС, СБУ, Адміністрації Держприкордонслужби, ДПтС, Держспецзв'язку, Державного управління справами та завіряється печаткою.
У разі незгоди члена комісії з розслідування із змістом акта за формою П-4 він його підписує, письмово викладає свою окрему думку, яка додається до акта і є його невід'ємною частиною, про що робиться відмітка у зазначеному акті.
88. Акт за формою П-4 складається протягом трьох днів після закінчення розслідування у шести примірниках та надсилається хворому, робочому органові виконавчої дирекції Фонду, первинній організації відповідної профспілки або уповноваженій найманими працівниками особі з питань охорони праці (у разі, коли профспілка на підприємстві відсутня), вищому профспілковому органові, профпатологу, який направив хворого до спеціалізованого профпатологічного лікувально-профілактичного закладу, підприємству.
Акт за формою П-4 разом з матеріалами розслідування зберігається на підприємстві, в закладі державної санітарно-епідеміологічної служби та робочому органі виконавчої дирекції Фонду протягом 45 років, а в інших організаціях — не менше строку, передбаченого для вжиття визначених у ньому профілактичних заходів.
Заходи щодо запобігання виникненню професійних захворювань
89. Роботодавець зобов'язаний у п'ятиденний строк після закінчення розслідування причин виникнення професійного захворювання розглянути матеріали розслідування та видати наказ про вжиття заходів до запобігання виникненню професійних захворювань та про притягнення до відповідальності осіб, винних у порушенні санітарних норм і правил, що призвело до виникнення професійного захворювання.
90. Про вжиття запропонованих комісією з розслідування заходів до запобігання виникненню професійних захворювань роботодавець письмово інформує заклад державної санітарно-епідеміологічної служби, який здійснює санітарно-епідеміологічний нагляд за підприємством, протягом зазначеного в акті за формою П-4 строку.
91. Контроль за своєчасністю та об'єктивністю проведення розслідування причин виникнення професійних захворювань, документальним оформленням, вжиттям заходів до усунення зазначених причин здійснюють заклади державної санітарно-епідеміологічної служби, робочі органи виконавчої дирекції Фонду, профспілки або уповноважені найманими працівниками особи з питань охорони праці відповідно до їх повноважень.
Реєстрація та облік випадків професійних захворювань (отруєнь)
92. Реєстрація та облік випадків професійних захворювань (отруєнь) ведеться у журналі обліку професійних захворювань (отруєнь) за формою згідно з додатком 18:
на підприємстві, у робочих органах виконавчої дирекції Фонду та в закладах державної санітарно-епідеміологічної служби на підставі повідомлень за формою П-3 та актів за формою П-4;
у лікувально-профілактичних закладах на підставі медичних висновків лікарсько-експертної комісії спеціалізованого профпатологічного лікувально-профілактичного закладу, а також повідомлень за формою П-3.
У разі виявлення кількох професійних захворювань хворий реєструється в журналі один раз із зазначенням усіх діагнозів.
93. Заклади державної санітарно-епідеміологічної служби на підставі актів за формою П-4 складають картки за формою П-5, які зберігаються протягом 45 років у таких закладах та МОЗ.
94. Порядок збирання та передачі інформації про випадки професійних захворювань (отруєнь) для автоматизованої системи обліку та аналізу професійних захворювань (отруєнь) визначається МОЗ.
95. Картки за формою П-5 надсилаються МОЗ щороку до 1 лютого і 1 серпня.
96. Форми державної статистичної звітності щодо професійних захворювань (отруєнь) затверджуються МОЗ.
97. Реєстрація та облік випадків професійних захворювань у працівників, які направлені на роботу за межі підприємства, здійснюються підприємством, працівником якого є потерпілий, робочим органом виконавчої дирекції Фонду за місцезнаходженням такого підприємства та закладом державної санітарно-епідеміологічної служби, який здійснює санітарно-епідеміологічний нагляд за підприємством.
98. Підтверджені випадки професійних захворювань працівників, які змінили місце роботи, або непрацюючих пенсіонерів підлягають реєстрації та обліку на останньому підприємстві, де були умови для виникнення професійного захворювання (незалежно від стажу роботи на ньому), в робочому органі виконавчої дирекції Фонду за місцезнаходженням такого підприємства та закладі державної санітарно-епідеміологічної служби, який здійснює державний санітарно-епідеміологічний нагляд за підприємством.
99. Випадки професійних захворювань, які виявлені в осіб, що приїхали на постійне проживання в Україну з інших держав, розслідуються в порядку, передбаченому міжнародними договорами України, та реєструються лікувально-профілактичними закладами, закладами державної санітарно-епідеміологічної служби та робочими органами виконавчої дирекції Фонду за місцем їх проживання в Україні.
Розслідування та облік аварій***
100. Розслідування проводиться у разі, коли сталася:
1) аварія першої категорії, внаслідок якої:
смертельно травмовано п'ять та більше осіб або травмовано десять і більше осіб;
спричинено викид отруйних, радіоактивних та небезпечних речовин за межі санітарно-захисної зони підприємства;
збільшилася більш як у 10 разів концентрація забруднюючих речовин у навколишньому природному середовищі;
зруйновано будівлі, споруди чи основні конструкції об'єкта, що створило загрозу для життя і здоров'я працівників підприємства чи населення;
2) аварія другої категорії, внаслідок якої:
смертельно травмовано до п'яти осіб або травмовано від чотирьох до десяти осіб;
зруйновано будівлі, споруди чи основні конструкції об'єкта, що створило загрозу для життя і здоров'я працівників цеху, дільниці з чисельністю працюючих 100 і більше осіб.
Випадки порушення технологічних процесів, роботи устаткування, тимчасової зупинки виробництва засобами автоматичного захисту та інші локальні порушення у роботі цехів, дільниць і окремих об'єктів, падіння опор та обрив проводів ліній електропередачі не належать до аварій, що мають категорію, і розслідуються підприємством в установленому законодавством порядку.
З метою врахування специфіки галузей економіки, визначення аварій першої чи другої категорії центральними органами виконавчої влади у разі потреби розробляються і затверджуються відповідні галузеві порядки проведення розслідування аварій за погодженням з Держгірпромнаглядом.
101. Про аварію очевидець повинен негайно повідомити безпосереднього керівника робіт або іншу посадову особу підприємства, які зобов'язані повідомити роботодавця для негайного введення в дію плану локалізації та ліквідації аварійних ситуацій і аварій (у разі наявності).
102. Роботодавець або особа, яка керує виробництвом під час зміни, зобов'язані діяти згідно з планом локалізації та ліквідації аварійних ситуацій і аварій, вжити першочергових заходів до рятування потерпілих і надання їм медичної допомоги, локалізації аварії, встановлення меж небезпечної зони та обмеження доступу до неї людей, збереження до прибуття комісії з розслідування аварії обстановки на місці аварії.
103. Роботодавець зобов'язаний негайно повідомити про аварію територіальний орган Держгірпромнагляду, орган, до сфери управління якого належить підприємство, відповідну місцеву держадміністрацію, орган з питань захисту населення і територій від надзвичайних ситуацій, прокуратуру за місцем виникнення аварії і відповідний профспілковий орган, а у разі травмування або загибелі працівників також відповідний робочий орган Фонду.
104. Розслідування аварії, під час якої сталися нещасні випадки, проводиться з урахування вимог цього Порядку.
У разі коли Кабінетом Міністрів України не прийнято спеціального рішення щодо розслідування аварії, під час якої не сталося нещасних випадків, розслідування проводиться відповідними комісіями, що утворюються:
у разі настання аварії першої категорії — центральним органом виконавчої влади, до сфери управління якого належить підприємство, чи місцевою держадміністрацією за погодженням з відповідними органами державного нагляду за охороною праці та МНС;
у разі настання аварії другої категорії — керівником органу, до сфери управління якого належить підприємство, чи місцевою держадміністрацією за погодженням з Держгірпромнаглядом та МНС.
Головою комісії з розслідування аварії призначається представник органу, до сфери управління якого належить підприємство, або представник територіального органу Держгірпромнагляду чи МНС.
105. У ході розслідування комісія з розслідування аварії:
1) визначає:
масштаб аварії;
необхідність утворення експертної комісії, яка встановлює обставини і причини аварії, фактори, що призвели до аварії, розробляє план заходів щодо запобігання подібним аваріям та у разі потреби готує пропозиції стосовно коригування нормативної та проектної документації;
2) підтверджує факти порушення вимог законів та інших нормативно-правових актів про охорону праці, встановлює осіб, що несуть відповідальність за виникнення аварії, розробляє план заходів щодо ліквідації її наслідків та запобігання подібним аваріям.
106. Комісія з розслідування аварії зобов'язана протягом десяти робочих днів провести розслідування обставин і причин аварії та скласти акт за формою Н-5.
Збитки, заподіяні аварією, визначаються з урахуванням наведених у додатку 19 відомостей.
Залежно від масштабу аварії у разі потреби зазначений строк може бути продовжений органом, який утворив комісію з розслідування аварії, з метою проведення додаткових досліджень або експертизи.
107. За результатами розслідування аварії роботодавець видає наказ, яким на підставі висновків відповідної комісії затверджує план заходів щодо запобігання подібним аваріям і згідно із законодавством притягає до відповідальності працівників за порушення вимог законодавства про охорону праці.
Роботодавець згідно з вимогами законодавства з питань захисту населення і територій від надзвичайних ситуацій та про охорону праці затверджує:
план заходів щодо запобігання надзвичайним ситуаціям, у якому зазначаються відомості про можливі аварії та інші надзвичайні ситуації техногенного та природного характеру, прогнозуються наслідки, передбачаються сили і засоби для їх ліквідації, а також строки виконання таких заходів;
план локалізації та ліквідації аварійних ситуацій і аварій, в якому зазначаються відомості про всі можливі аварії та інші надзвичайні ситуації, дії посадових осіб і працівників підприємства у разі їх виникнення, обов'язки особового складу аварійно-рятувальних служб або працівників інших підприємств, які залучаються до ліквідації наслідків аварій (надзвичайних ситуацій).
108. Матеріали розслідування аварії складаються з документів, зазначених у пункті 50 цього Порядку, а також доповідної записки про роботу аварійно-рятувальних служб або підрозділів державної пожежної охорони, якщо вони залучалися до ліквідації наслідків аварії.
109. Друкування, тиражування і оформлення в необхідній кількості матеріалів розслідування аварії проводить підприємство, де сталася аварія, яке у п'ятиденний строк після закінчення розслідування надсилає їх прокуратурі та органам, представники яких брали участь у її розслідуванні.
У разі розслідування аварії, що не спричинила нещасних випадків, примірник акта за формою Н-5 зберігається на підприємстві до завершення вжиття заходів, визначених комісією, але не менш як два роки.
110. Роботодавець зобов'язаний проаналізувати причини виникнення аварії та розробити план заходів щодо запобігання подібним аваріям у строк, зазначений комісією з розслідування аварії в акті спеціального розслідування нещасного випадку (аварії).
111. У разі коли аварія сталася через проектні недоробки або конструктивні недоліки устаткування, для участі в роботі комісії з розслідування аварії залучаються представники підприємства — розробника такого устаткування.
Роботодавець зобов'язаний надіслати підприємству — розробникові і виготовлювачеві устаткування обґрунтовані рекламації, їх копії — органам управління підприємств, у разі їх відсутності — місцевій держадміністрації.
112. Облік аварій першої і другої категорії ведуть підприємства і органи державного управління охороною праці та органи державного нагляду за охороною праці і реєструють їх у журналі згідно з додатком 20.
Форми державної статистичної звітності щодо виникнення аварій затверджує Держгірпромнагляд.
Письмову інформацію про вжиття заходів, визначених комісією з розслідування аварії, роботодавець подає у зазначені в акті за формою Н-5 строки організаціям, представники яких брали участь у розслідуванні.
113. Контроль за своєчасним та об'єктивним проведенням розслідування, документальним оформленням та обліком аварій, вжиттям заходів до усунення їх причин здійснюють органи державного управління охороною праці та органи державного нагляду за охороною праці.
* Під територією підприємства слід розуміти земельну ділянку, яка надана йому у користування, а також ділянку, яку віднесено до території підприємства згідно з рішенням відповідної сільської, селищної, міської ради. Якщо організація орендує певні приміщення підприємства, нещасні випадки на території підприємства з працівниками такої організації розслідуються і беруться на облік згідно з цим Порядком.
** Медичний висновок щодо встановлення зв’язку погіршення стану здоров’я працівника з впливом на нього небезпечних, шкідливих виробничих факторів, психоемоційних причин або протипоказань за станом здоров’я виконувати роботу видається лікувально-профілактичним закладом за місцем лікування або обстеження потерпілого у формі рішення лікарсько-експертної комісії на запит роботодавця та/або голови комісії. У такому запиті та доданих до нього матеріалах повинні міститися необхідні відомості про обставини нещасного випадку, результати дослідження умов праці і виробничого середовища, зокрема кількісні і якісні характеристики небезпечних, шкідливих виробничих факторів та/або факторів важкості чи напруженості трудового процесу, які передували настанню нещасного випадку.
*** Аварією є небезпечна подія техногенного характеру, що створює на об’єкті, території або акваторії загрозу для життя і здоров’я людей і призводить до руйнування будівель, споруд, інженерних комунікацій, обладнання і транспортних засобів, порушення виробничого або транспортного процесу чи завдає шкоди навколишньому природному середовищу.









| |
| |










































